О квартире
Площадь
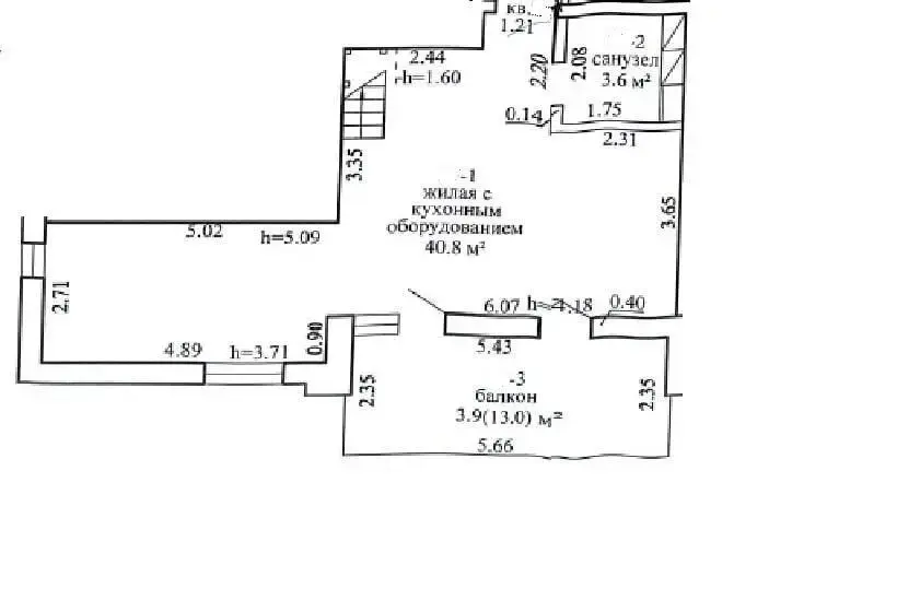
70 м2
общая
58.8 м2
жилая
10 м2
кухня
Санузел
совмещенный
Балкон
Балкон
Тип ремонта
Без отделки
О доме
Этаж
6 из 7
Материал стен
Монолитный
Год постройки
2025
Описание
Дианэст — Агент
9 лет на сайте
Условия сделки:продажа
Показать почту
Пожаловаться на объявление
Агентство недвижимости
Дианэст
УНП: 190124316 Лицензия: от 06.06.2005 № 187
Договор №: 169/4 от 2025-10-28


























