О квартире
О доме
Описание
Ситихаус 7.4. Жилье комфорт класса. Успейте приобрести квартиру по цене застройщика. Квартира с мансардой.
Особенности ситихауса 7.4:
- Дом будет построен по технологии «Префаб монолит»
- 7-8-6-7 этажей. 107 квартир
- Квартиры от 2 до 6 комнат
- Планировки евроформата от 38 до 116 м2
- Высота потолков 2,9. Мансардные квартиры - до 7,7м.
- Окна с подоконной частью 470-500 мм
- В 1 подъезде во всех квартирах возведены перегородки и разведена электрика
Проходные подъезды будут размещать:
- Помещение для мытья лап домашних животных
- Помещение для хранения колясок на 1 этаже
- Видеодомофоны, видеонаблюдение в подъезде
- Проходные лифты в 1,3,4 подъездах
- Удобная навигация, чат-доска
- Полки для book crossing
- Почтовые ящики со спам-отделением
- Безбарьерный вход
Внутреннее благоустройство двора будет создано из сохраненных лесных деревьев, к которым в дополнение будут высажены кустарники и многолетние травы.
И будет включать:
- Площадка для детей от 1 до 7 лет с зоной отдыха для взрослых под навесом
- Лавочки для тихого отдыха
- Зона "уличных огородов"
- Соседский центр с павильоном и участком для совместного времяпрепровождения
- Крытый велобокс для хранения велосипедов
Технология «Префаб монолит» предполагает полный перенос производства монолита со стройплощадки на завод, т.е. контролируемое заводское качество.
Основные преимущества технологии:
1. Высота потолков;
2. Качество контролируется прямо на предприятии;
3. Современные свободные планировочные решения;
4. Шумоизоляция конкурентна с монолитными домами и превосходит другие ДСК.
5. Гладкость поверхности панелей - нет необходимости дополнительного оштукатуривания и выравнивания, идеальная геометрия стен.
6. Панорамное остекление при выходе на балкон лоджию, как правило в зоне гостиной.
Лучшее решение проблемы недостатка естественного освещения: в мансардных квартирах много света в любое время года; Большой объем помещения — это обилие воздуха, а значит, в буквальном смысле здоровая атмосфера у вас дома.
За счет большой высоты потолков вы можете получить дополнительные квадратные метры, организовав второй уровень — вплоть до полноценного второго этажа.
Ваша квартира может быть настолько неповторимой и индивидуальной, насколько вам того хочется. Большая высота потолков — несомненный плюс с точки зрения дизайна, поскольку это дает полную свободу выбора вариантов отделки, использования аксессуаров и акцентных элементов.
Дополнительные преимущества:
• Продажа без посредников — никаких скрытых комиссий
• Возможность покупки квартиры в рассрочку или в кредит
• Оформление всех документов, помощь в выборе и сопровождение сделки
Звоните и мы подберем для Вас самый лучший вариант!
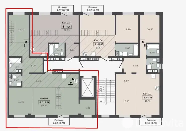
Квартира номер 104 с мансардой.
Актуально на 29.10.2025
Совершая звонок, Вы даете согласие на обработку персональных данных.
ООО «ЭТАЖИ юнайтед» УНП: 193673318 Договор №1902/1 от 10.09.2025г. по 09.09.2026г. Лицензия на оказание риэлтерских услуг 02240/460 МЮ РБ от 03.04.2023.
































