О квартире
О доме
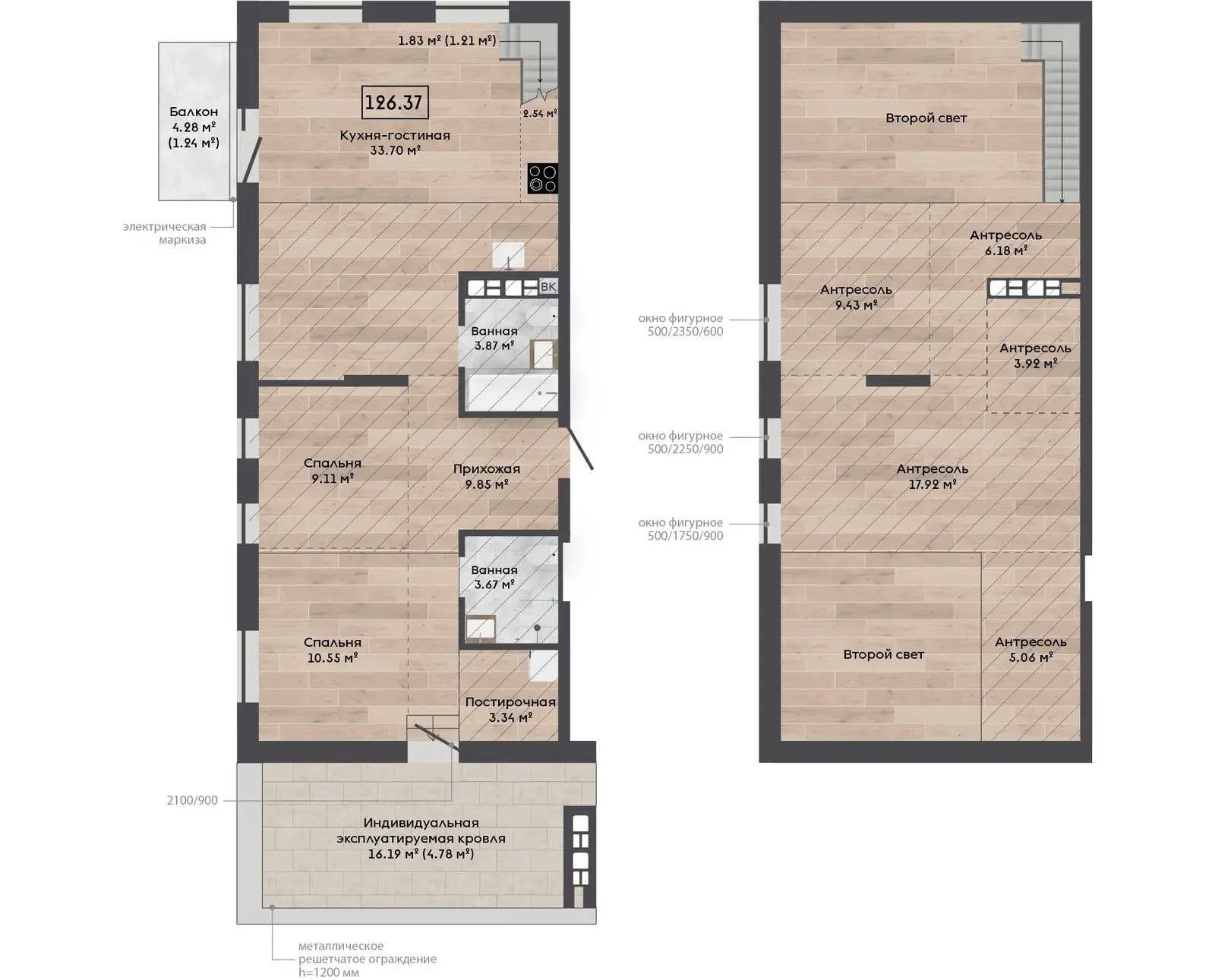
Описание
Просторная 5-комнатная квартира с мансардой и террасой на крыше. Высокие потолки и большое количество естественного света создают ощущение простора и уюта.
Локация
- Дом расположен в центре квартала «Горный ручей».
- С двух сторон обрамлён зелёным коридором, обеспечивая жителям живописные виды из окон.
- В шаговой доступности: лесной пляж, кафе, магазины, рестораны, кофейни, паркинг, тренажёрный зал, аптека, детский сад (2025г.), школа (2028г.).
О доме
- Срок сдачи: 4 квартал 2026 года.
- Комфорт-класс, современная технология монолитного строительства с высоким уровнем шумоизоляции.
- Гладкость поверхности панелей - нет необходимости дополнительного оштукатуривания и выравнивания, идеальная геометрия стен.
- Открытые и остеклённые балконы.
Внутреннее благоустройство двора
Будет создано из сохранённых лесных деревьев, к которым в дополнение будут высажены кустарники и многолетние травы.
- Еврозабор высотой 1,6 м.
- Видеонаблюдение дворовой территории и по периметру группы домов.
- Зелёный коридор.
- Спортивная площадка.
- Крытый велобокс для хранения велосипедов.
- Территория двора сохраняет концепцию закрытой территории без автомобилей и парковок.
Зелёный коридор и природные зоны
- Игровые комплексы с горками, качелями и верёвочными конструкциями.
- Зоны тихого отдыха с деревянными настилами.
- Пространство для активного и спокойного времяпрепровождения всей семьи.
Инфраструктура подъезда
- Безбарьерный вход.
- Помещение для мытья лап домашних животных.
- Комната для хранения колясок.
- Видеодомофон и продуманная навигация.
- Чат-доска для соседей, полки для book-crossing.
- Почтовые ящики со спам-отделением.
Квартира
- Без отделки.
- Высота потолков переменная - от 2,04 м до 6,16 м.
- Оконные проёмы с низкой подоконной частью: 500 мм.
- Терраса. Участок приподнят на 0,5 метра над уровнем территории двора и обнесен металлическим ограждением.
- Обязательная покупка при приобретении квартиры - машино-место. Доступно в паркинге, в т.ч. места с ЭЗС. Не входит в стоимость квартиры.
Рассрочка от застройщика
- краткосрочная от 70% до 6 месяцев без увеличения стоимости;
- от 40% до конца строительства дома с увеличением стоимости;
- длительная от 40% до 60 месяцев с увеличением стоимости.
Квартира продаётся по цене застройщика без комиссии!
Звоните - лучшие предложения всегда уходят первыми!
Поможем продать Вашу недвижимость, чтобы купить эту!
Бесплатная консультация по кредитованию!
Наличие и стоимость актуальны на 04.12.2025 г.
ООО «ЭТАЖИ юнайтед»
УНП: 193673318
Договор N 1902/1 от 10.09.2025г. по 09.09.2026г.
Лицензия на оказание риэлтерских услуг №02240/460 МЮ РБ от 03.04.2023
Совершая звонок, вы даёте согласие на обработку персональных данных.
Ознакомиться с политикой обработки персональных данных ООО «ЭТАЖИ юнайтед» можно здесь.



























