Подать БЕСПЛАТНО

ОБЪЕКТ В АРХИВЕ

Фотографии отсутствуют

Продажа 1-этажного дома в Масловичах, Минская область ул. Лесная, 325000USD, код 652183

Минская область, д. Масловичи, ул. Лесная
Показать на карте
Мядельское направление
18 км от МКАД
919 913 р.
Код объекта: 652183
5 комнат
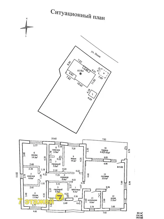
140.6 м2
15.23 соток
Обновлено: 02.10.2025
919 913 р.
Предложить свою цену

О доме

Площадь общая
140.6 м2
Площадь дома
140.6 м2
Участок
15.23 соток
В продаже
Целый дом
Готовность дома, %
90
Год постройки
2025
Материал стен
Керамзитбетон
Материал крыши
Металлочерепица

Коммуникации

Отопление: Газовое
Водоснабжение: Центральное
Газ: В доме
Электричество: Есть
Телефон: Да
Канализация: 1

Описание

Дом в деревне Масловичи. Фото красивые, но вживую выглядит ещё лучше, чем на фото. Современный дом дом для любителей хорошего качества - Стены из керамзитобетонных блоков в - Великолепное месторасположение: в тупиковой улице не окраине населенного пункта - В доме 3 спальни, кухня-гостиная, терраса - Только качественная работы и строительные материалы - Участок в частной собственности, 15.23 соток - Быстрая логистика из Минска 18 минут по Мядельской трассе (120 км\ч) и Вы дома или в городе - Территория огорожена - Сделаны выводы под видеонаблюдение и выполнен подвод к станции для зарядки авто - Вечерняя подсветка участка - Идеальный рулонный газон - Газ введен в дом - Вода центральная - 220/380 В, на участок выделено 15 кВт - ADSL интернет (по улице), в планах оптоволокно - Рядом с участком большой облагороженный пуд (приватный, на двоих с соседом) - Полностью обжитая улица - Хорошие соседи - На выезде из города Гипермаркет с продуктами, а так же огромный строительный гипермаркет - В шаговой доступности магазин - Остановка, до Минска ходят автобусы, маршрутное такси (каждые 30 мин.). Instagram: realestate.minsk Окажем помощь в получении кредита или позитивно продадим Вашу недвижимость для покупки этого дома
АгентАгент
9 лет на сайте
Показать почту
Пожаловаться на объявление
Агентство недвижимости
7 этажей

Местоположение

Минская область, д. Масловичи, ул. Лесная
Опубликовано: 02.10.2025

Похожие объекты

На этой улице
806 693 р.
д. Масловичи, ул. Лесная
140.6
80.1
11.8 м2
15.23 соток