Подать БЕСПЛАТНО

Купить 2-комнатную квартиру в Могилеве, б-р Непокоренных, д. 62

г. Могилев, б-р Непокоренных, 62
Показать на карте
Октябрьский район
121 330 р.
Цена за м2: 2 377 р.
Код объекта: 1213661
2 комнаты
51.01 м2
9 этаж из 9
Обновлено: 05.12.2025
121 330 р.
Цена за м2: 2 377 р.
Предложить свою цену

О квартире

Площадь
51.01 м2
общая
30.44 м2
жилая
8.15 м2
кухня
Санузел
раздельный
Балкон
Лоджия
Тип ремонта
Косметический

О доме

Этаж
9 из 9
Материал стен
Панельный

Описание

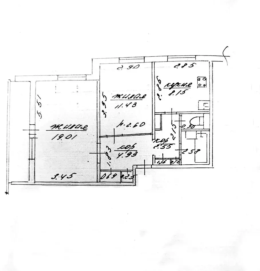
В продаже 2-комнатная квартира по адресу: г.Могилев, бульвар Непокоренных, 62, на 9-м этаже 9-этажного панельного дома 1978 года постройки. Большой тамбур на две квартиры. Квартира общей площадью 51,01 кв.м (без учета площади лоджии). Включает: площадь жилых комнат - 19,01 кв.м. и 11,43 кв.м., прихожая - 4,93 кв.м., встроенные шкафы- 1,46 кв.м., коридор - 2,55, кухня - 8,15 кв.м., ванная комната - 2,58 кв.м., санузел - 0,90 кв.м. (см.фото тех. паспорта). Квартира угловая, что позволяет иметь большую лоджию (застеклена). Все окна ПВХ. Хорошая планировка, комнаты разделены. Высота потолков - 2,6 м. Все коммуникации центральные. Состояние квартиры - жилое, под ремонт (по современным меркам, т.е. Вы сможете там проживать (при необходимости) и самостоятельно сделать ремонт по Вашему желанию, не переплачивая за чужой). Вся инфраструктура (ТЦ (Грин", "Арбат", "Карусель", "Санта"), магазины, дет.сады, школы, аптеки, мед.центры, спорт.залы, мини-рынок, парикмахерские, ЖЭУ, банк, мойки и т.д.) в пешей доступности. В непосредственной близости и остановки общественного транспорта. Остальную информацию в Вы можете получить по номеру, указанному в объявлении. Можем выслать больше фотографий по личному запросу. Приглашаем на показ по предварительной договоренности. При необходимости поможем в продаже Вашей недвижимости для покупки этой. Договор 173/16 от 03.12.2025г ОДО «Юриэлт», УНП 101214439, Лицензия Министерства юстиции РБ №02240/8 от 17.02.2005 года (бессрочная) на право осуществления деятельности по оказанию юридических услуг - риэлтерских услуг.
ЕвгенияАгент
3 года на сайте
Условия сделки:Чистая продажа
Показать почту
Пожаловаться на объявление
Агентство недвижимости
Юриэлт, филиал г. Могилев

Местоположение

г. Могилев, б-р Непокоренных, 62
Октябрьский район
Опубликовано: 05.12.2025

Возможно, вам будет интересно

Похожие объекты

На этой улицеВ этом районе
127 121 р.
Цена за м2: 1 741 р.
Октябрьский район, б-р Непокоренных
3-комн. кв
73
50
7 м2
4 этаж из 9
260 613 р.
Цена за м2: 3 458 р.
Октябрьский район, б-р Непокоренных
3-комн. кв
67
39
8 м2
6 этаж из 9
204 147 р.
Цена за м2: 3 093 р.
Октябрьский район, б-р Непокоренных
3-комн. кв
66
46
8 м2
6 этаж из 9
127 121 р.
Цена за м2: 1 741 р.
Октябрьский район, б-р Непокоренных
3-комн. кв
73
50
7 м2
4 этаж из 9
144 785 р.
Цена за м2: 2 838 р.
Октябрьский район, пр-т Пушкинский
2-комн. кв
51
30
8 м2
9 этаж из 9
196 908 р.
Цена за м2: 2 724 р.
Октябрьский район, ул. Мовчанского
3-комн. кв
71
41
9.5 м2
12 этаж из 13