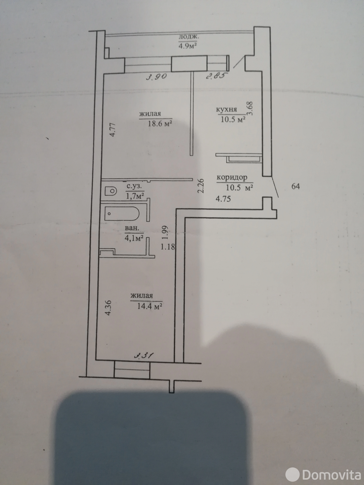
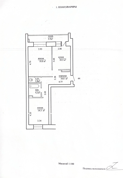
О квартире
Площадь
64.7 м2
общая
33 м2
жилая
10.5 м2
кухня
Отдельных комнат
2 комнаты
Санузел
Раздельный
Балкон
Лоджия
Тип ремонта
Хороший
О доме
Этаж
6 из 10
Материал стен
Кирпичный
Год постройки
2009
Описание
Кристина — Собственник
6 лет на сайте
Условия сделки:Чистая продажа
Пожаловаться на объявление



























