Выберите валюту для сайта:
BYN
Подать БЕСПЛАТНО

Купить офис на пр-т Витебский, д. 4 в Могилеве, 710000BYN, код 8625

1039.6 м2 1 этаж из 3 Октябрьский район / Холмы
710 000 р.
Офис
Город Могилев
Район Октябрьский район
Микрорайон Холмы
Адрес пр-т Витебский, д. 4
Площадь 1039.6 м2
Этаж 1

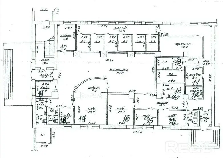
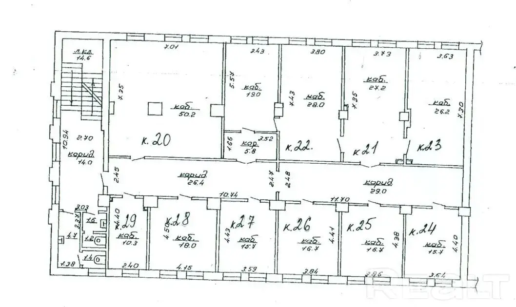
Описание

Продается здание в г. Могилеве!

Объект представляет собой часть отдельно стоящего 3-х этажного здания общей площадью 1039,6 кв.м., расположенное на земельном участке площадью 19,7 сот., предоставленном на праве постоянного пользования.

Объект расположен на Витебском проспекте, рядом с Чаусским шоссе и Автозаводской улицей. Оживленное место, рядом жилой массив и административные здания.

Выгодная локация с хорошо развитой инфраструктурой позволяет без проблем добраться до любой точки города. В шаговой доступности остановки общественного транспорта, магазины, банки, аптеки и др.

Здание состоит из административных помещений. Сделан хороший ремонт.

  • Отдельный вход;
  • Ремонт/мебель;
  • Естественное освещение;
  • Несколько Сан. узлов;
  • Видео наблюдение и охранная сигнализация;
  • Подъездные пути;
  • Собственная парковка.

Покупатель не оплачивает услуги агентства.

Код объекта: 8625 Договор с собственником: 345/2а от 2024-02-19 Опубликовано: 30.04.2025 Обновлено: 06.02.2026
Динамика цен за кв. метрДинамика цен

Вы просматривали

710 000 р. 680 р. за м2
Октябрьский р-н
858 480 р. 1 620 р. за м2
Фрунзенский р-н
186 004 р. 2 514 р. за м2
Ленинский р-н
642 143 р. 6 296 р. за м2
Первомайский р-н
Офис, 1039.6 м2
Могилев, пр-т Витебский, д. 4
710 000 р.
680 р. за м2
Наталья Санчуковская
Пожалуйста, скажите, что нашли этот объект на Domovita.by
+
Фильтр сохранен