Выберите валюту для сайта:
BYN
Подать БЕСПЛАТНО

Купить офис на ул. Сурганова, д. 10 в Могилеве, 295000USD, код 9749

371 м2 1 этаж из 10 Ленинский район / Мир
869 749 р.
Офис
Город Могилев
Район Ленинский район
Микрорайон Мир
Адрес ул. Сурганова, д. 10
Год постройки 2002 г.
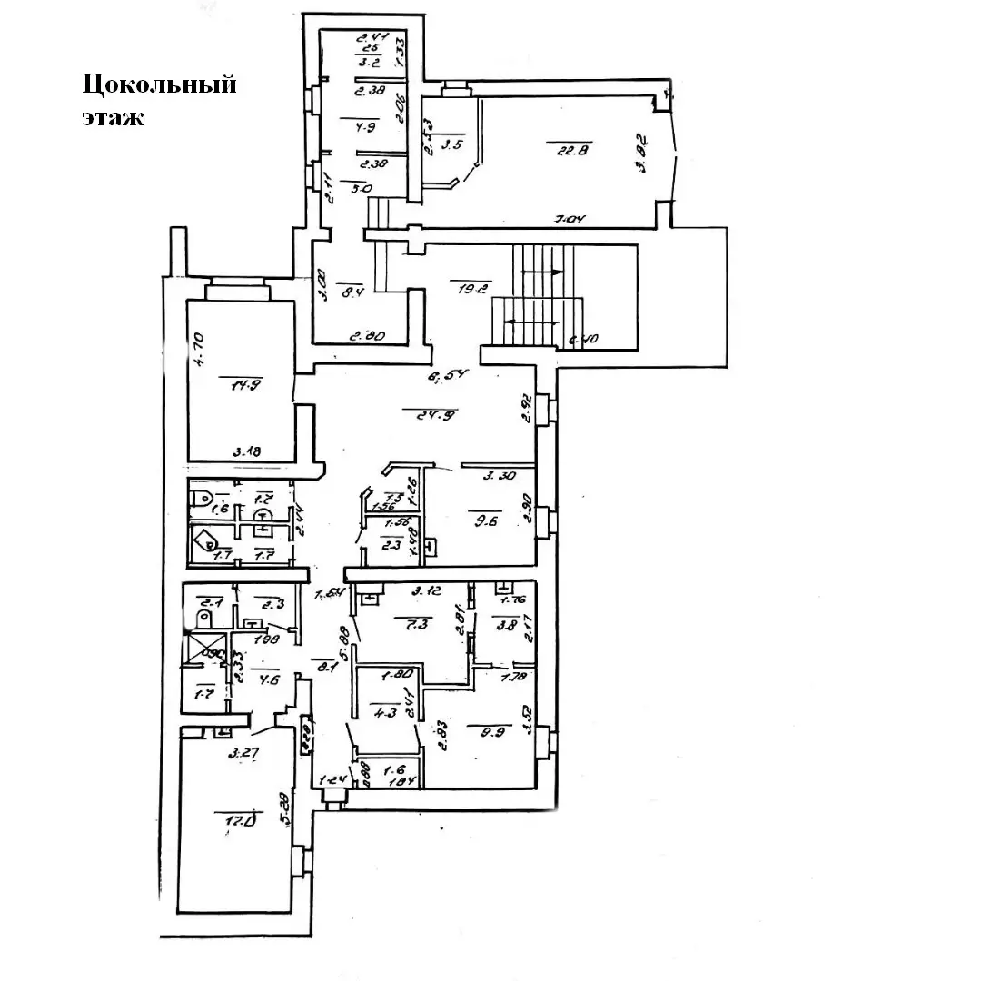
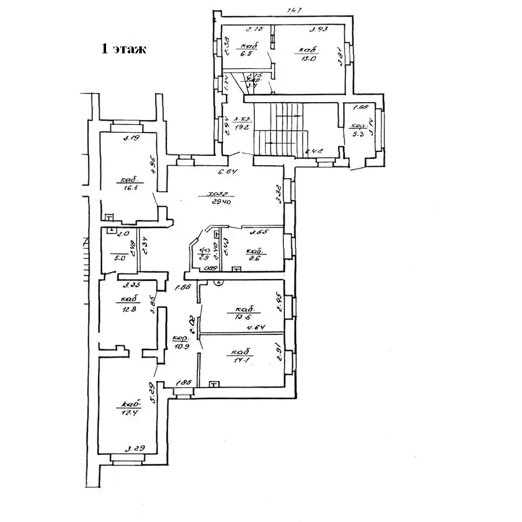
Площадь 371 м2
Помещений 15
Этаж 1

Описание

В продаже коммерческое помещение, расположенное по адресу: улица Сурганова д. 10. Первый и цокольный этажи 10-ти этажного кирпичного дома 2002 года постройки. Есть гараж и своя территория, удобная парковка. Общая площадь 371 кв.м. Площадь земли 0,0593 га. Помещение подготовлено для оказания медицинских услуг. Все технические, инженерные, монтажные работы – выполнены в соответствии со всеми необходимыми требованиями. Отделка внутри помещения по всем современным санитарным нормам. Возможно использование под административное назначение. Просмотр в удобное для вас время, по предварительной договорённости. Договор 34/16 от 12.03.2025г. ОДО «Юриэлт», УНП 101214439, Лицензия Министерства юстиции РБ N°02240/8 от 17.02.2005 года (бессрочная) на право осуществления деятельности по оказанию юридических услуг - риэлтерских услуг.
Код объекта: 9749 Договор с собственником: #34/16 от 12.03.2025 Опубликовано: 11.12.2025 Обновлено: 11.12.2025
Динамика цен за кв. метрДинамика цен
Похожие объекты
Адрес
Комнат
Площадь
Этаж
Цена за м2
Цена
4-комнатная
74 м2
1 из 9
2 590 р. за м2

Вы просматривали

869 749 р. 2 344 р. за м2
Ленинский р-н
Офис, 371 м2
Могилев, ул. Сурганова, д. 10
869 749 р.
2 344 р. за м2
Юриэлт
Пожалуйста, скажите, что нашли этот объект на Domovita.by
+
Фильтр сохранен