О квартире
О доме
Описание
2-комнатная квартира с современным ремонтом в Молодечно
Стильная двухкомнатная квартира с качественно выполненным ремонтом, новой проводкой и коммуникациями в теплом кирпичном доме после капремонта – въезжай и живи!
Адрес: Молодечно, ул. Мовчанского, д. 19
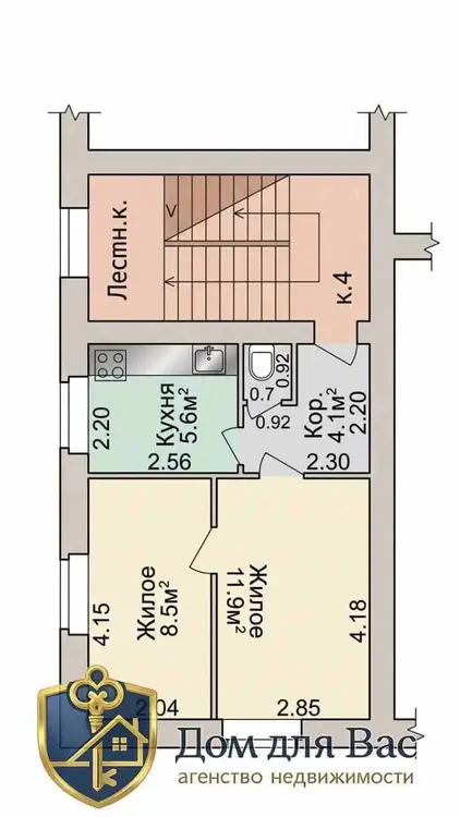
- Двухкомнатная квартира на 1 этаже 2-этажного кирпичного дома с продуманной планировкой. Общая площадь 44 м², жилая – 22 м², кухня – 7 м².
- Квартира полностью преображена стильным ремонтом! По всей квартире уложен качественный ламинат на стяжке с утеплением, установлены натяжные потолки. Полностью заменена электропроводка, водопроводные и канализационные трубы – всё новое и надежное.
- Кухня оборудована современной угловой белой мебелью с деревянной столешницей, встроенной техникой: газовая плита, духовой шкаф, вытяжка. Стильный фартук с декоративными 3D-шарами, рольшторы "день-ночь".
- Жилые комнаты оформлены с безупречным вкусом: нейтральные серые стены с декоративными обоями, белые современные двери, продуманное освещение. В одной из комнат установлена ТВ-зона с подсветкой, вместительный шкаф-купе.
- Санузел совмещенный с качественной плиткой, ванной под экраном, современной раковиной с тумбой, местом для стиральной машины. Коридор с декоративной белой кирпичной стеной, встроенными шкафами и стильными синими акцентами.
- Теплый кирпичный дом 1969 года постройки, выполнен капитальный ремонт. Всего 2 этажа, дружелюбные соседи и тихий уютный двор. На придомовой территории есть отдельностоящий сарай с погребом для хранения.
- Инфраструктура Молодечно на высоком уровне: рядом школы, детские сады, поликлиники, торговые центры, магазины, парки для прогулок. Удобная транспортная развязка, регулярное сообщение с Минском.
Это идеальный вариант для молодой семьи, пары или тех, кто ценит стиль и комфорт без лишних затрат! Вам не нужно ничего переделывать – квартира полностью готова к проживанию с продуманным дизайном и новыми коммуникациями.
Ищете выгодную недвижимость или хотите продать свою? Мы решим это для Вас с заботой и профессионализмом:
- Купить квартиру или дом в Минске и области
- Продать недвижимость по выгодной цене
- Оформить ипотеку, семейный капитал или кредит на покупку недвижимости
- Помочь с инвестициями в недвижимость
- Подобрать дизайнерский ремонт или перепланировку
- Выбрать лучший банк для выгодного кредита и лизинга
* Напишите нам в удобный мессенджер - Viber, Telegram или WhatsApp, и мы ответим на все вопросы!
«Моя 7Я» решит это, как для своей семьи: с любовью, заботой и желаемым результатом!
Агентство недвижимости ООО «Центр международной недвижимости Моя 7Я» | УНП 193750826 | Лицензия: № 02240/484 выдана МЮ РБ 18.05.2024 г. | Страховое свидетельство БР 0005017

















