Подать БЕСПЛАТНО

Купить 2-комнатную квартиру в Молодечно, ул. Мовчанского, д. 24

Минская область, г. Молодечно, ул. Мовчанского, 24
Показать на карте
99 992 р.
Цена за м2: 3 245 р.
Код объекта: 1237188
2 комнаты
30.8 м2
1 этаж из 2
Обновлено: 03.04.2026
99 992 р.
Цена за м2: 3 245 р.
Предложить свою цену

О квартире

Площадь
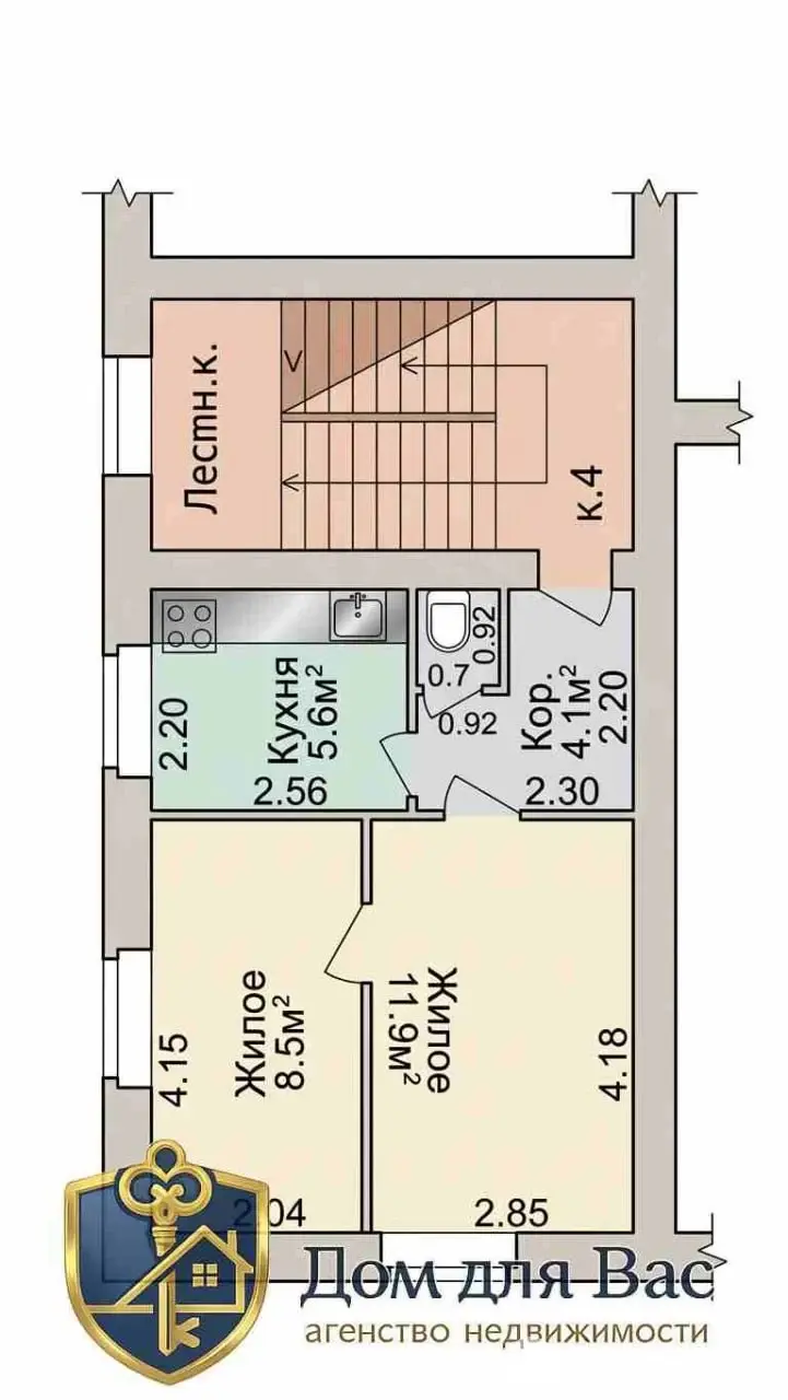
30.8 м2
общая
20.4 м2
жилая
5.6 м2
кухня
Отдельных комнат
2 комнаты
Санузел
Совмещенный
Балкон
Нет
Тип ремонта
Хороший

О доме

Этаж
1 из 2
Год постройки
1964
Год кап. ремонта
2025

Описание

2-комнатная квартира по цене однокомнатной в Молодечно

Дом после капитального ремонта. Квартира с ремонтом — можно заехать сразу.

Ищете доступное жильё без дополнительных вложений? Этот вариант — отличное решение как для жизни, так и для сдачи в аренду.

Планировка и характеристики:

Общая площадь: 30.8 м²

Жилая: 20.4 м²

Комнаты: 11.9 м² (проходная) и 8.5 м²

Кухня: 5.6 м²

Санузел: совмещённый

Состояние квартиры:

Окна ПВХ

Входная металлическая дверь

Натяжные потолки

Ламинат в жилых комнатах

Кухня и коридор — линолеум

Санузел — плитка

Что остаётся:

Кухонный гарнитур с плитой (2022 г.)

Шкаф, кровать, компьютерный стол

Душевая кабина, умывальник, унитаз

Вешалка для одежды и зеркало в коридоре
Карнизы, встроенные светильники

Преимущества:

Дом после капремонта

Квартира готова к проживанию

Удобный первый этаж

Тихий малоквартирный дом

Отличный вариант под аренду

Кому подойдёт:

Идеально для одного человека, пары, пожилых людей или инвестора.

Звоните и записывайтесь на просмотр

ЧУП "Агентство недвижимости «Дом для Вас»

УНП 690324176

Лицензия №02240/109 от 26.05.2006 г.

Договор №04/1 от 27.03.2025 г.

Агент
9 лет на сайте
Пожаловаться на объявление
Агентство недвижимости
Дом для Вас

Местоположение

Минская область, г. Молодечно, ул. Мовчанского, 24
Опубликовано: 03.04.2026

Возможно, вам будет интересно

Похожие объекты

На этой улице
128 561 р.
Цена за м2: 2 920 р.
г. Молодечно, ул. Мовчанского
2-комн. кв
44
22
7 м2
1 этаж из 2