О квартире
О доме
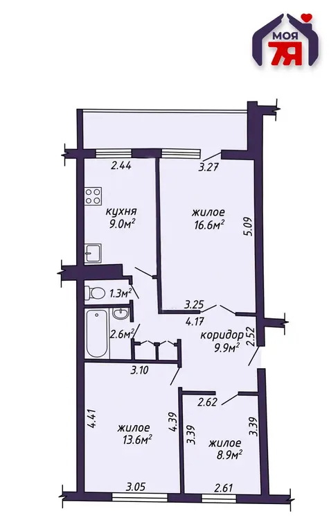
Описание
3-комнатная квартира 61,8 кв.м. в центральном районе Молодечно Продаётся 3-комнатная квартира рядом со сквером с хорошем жилом состоянии (фото по запросу). Адрес: г. Молодечно, ул. Великий Гостинец д. 137 - Общая площадь квартиры - 60,6 кв.м (65,1 кв.м по СНБ), из них 39 кв.м приходится на жилые комнаты. - Планировка продуманная и удобная: все три комнаты изолированные, окна выходят на две стороны дома, благодаря чему в квартире всегда достаточно света. - В квартире сделан ремонт: ламинат на полу, стеклопакеты на окнах и на лоджии, заменены межкомнатные двери, в сан. узлах современная плитка, на входе установлена металлическая входная дверь. - Большая кухня площадью 9 кв.м уже укомплектована мебелью, установлен кухонный гарнитур и газовая плита, пространство функциональное и логичное. - Дополнительно имеется собственное подвальное помещение. - Подъезд чистый и ухоженный, соседи спокойные и аккуратные. - Дом расположен в центральном, но при этом тихом и обжитом районе города с полностью сформированной инфраструктурой. Прямо во дворе расположен детский сад, рядом 11 школа и гимназия-колледж искусств. В шаговой доступности поликлиника, стоматологии, аптеки, продуктовые магазины, банк, парикмахерские, кафе, цветочный магазин, хозяйственные товары и бытовая химия. Поблизости находятся Успенский собор и костёл, дворец спорта, бары и рестораны, крупный торговый центр "Модуль" и "Тройка", супермаркет "Е-Сити". - До остановки общественного транспорта - около двух минут пешком, маршруты позволяют без пересадок добраться в любую часть города. - Всего в 15 минутах ходьбы - центральный парк и зелёные зоны для прогулок, спорта и отдыха всей семьёй. Ищете выгодную недвижимость или хотите продать свою? Мы решим это для Вас с заботой и профессионализмом: - Купить квартиру или дом в Минске и области - Продать недвижимость по выгодной цене - Оформить ипотеку, семейный капитал или кредит на покупку недвижимости - Помочь с инвестициями в недвижимость - Подобрать дизайнерский ремонт или перепланировку - Выбрать лучший банк для выгодного кредита и лизинга * Напишите нам в удобный мессенджер - Viber, Telegram или WhatsApp, и мы ответим на все вопросы! «Моя 7Я» решит это, как для своей семьи: с любовью, заботой и желаемым результатом! Агентство недвижимости ООО «Центр международной недвижимости Моя 7Я» | УНП 193750826 | Лицензия: № 02240/484 выдана МЮ РБ 18.05.2024 г. | Страховое свидетельство БР 0005017
























