Выберите валюту для сайта:
BYN
Подать БЕСПЛАТНО

Купить 3-этажную дачу в НАДЕЖДА-ПРОЕКТ Пуховичский район Минская область, 5800USD, код 184190

83 м2
17 374 р.
Дача
Адрес НАДЕЖДА-ПРОЕКТ Пуховичский район,
Направление Пуховичское
Удаленность от МКАД 37.25 км
Год постройки 1995
  
Общая площадь 83 м2
Участок 4.50 соток
Площадь дома 83 м2
Этажей 3
Тип отопления печное
Водоснабжение Сезонное
Канализация Есть
Удобства
Лес
Водоем

Описание

Продаётся садовый домик в СТ «Надежда-Проект», в 1 км ж/станции «Равнополье»!

Месторасположение: Пуховичское направление, 45 км от МКАД, 4 км п.г.т Руденска, в 1 км ж/станции «Равнополье».

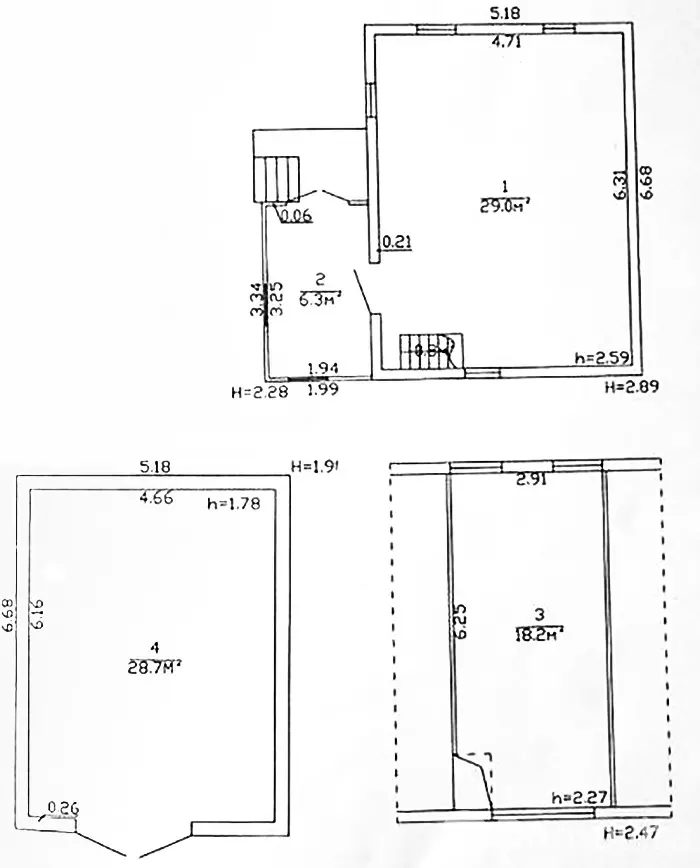
Описание дома: трехэтажный бревенчатый, обшит вагонкой, 1995 года постройки, садовый домик общей площадью 83 кв. м., состоит из 2 жилых комнат (первый этаж - 1 комната (29 кв. м.), второй этаж - комната(18.2 кв. м.), цокольное помещение 28.7 кв. м. Входная дверь железная и межкомнатные двери деревянные, пол - доска, внутренняя отделка - обои, окна деревянные. Крыша – шифер.

Коммуникации: свет есть, отопление печное, водоснабжение – сезонное, туалет на улице.

Земельный участок 4.5 сотки, в частной собственности, ровный, не ухоженный, имеются плодово-ягодные насаждения.

Хозпостройки – туалет.

Хорошие подъездные пути - к товариществу асфальт, 300 метров гравийная дорога.

Транспортное сообщение: ближайшая ж/д станция «Равнополье» 1 км., так же курсирует маршрутное такси до п.г.т Руденск и Минска и обратно.

Рядом ягодно-грибной лес, в 3 км озеро «Узляны».

!Смотрите еще больше дач на нашем Telegram канале @nedvizhimost_bel

Код объекта: 184190 Договор с собственником: 152/1 от 22.09.2025 Опубликовано: 23.09.2025 Обновлено: 01.12.2025
0 / 20 / 292
Дача, 83 м2
НАДЕЖДА-ПРОЕКТ Пуховичский район
16 795 р.
Григорий
Пожалуйста, скажите, что нашли этот объект на Domovita.by
+
Фильтр сохранен