Выберите валюту для сайта:
BYN
Подать БЕСПЛАТНО

Снять складское помещение на ул. Центральная, д. 2/б в Пересадах, код 963842

1500.6 м2 1 этаж из 2
5 731 р./мес.
Склад
Город Пересады
Адрес ул. Центральная, д. 2/б
Год постройки 1986 г.
Площадь 1500.6 м2
Этаж 1

Описание

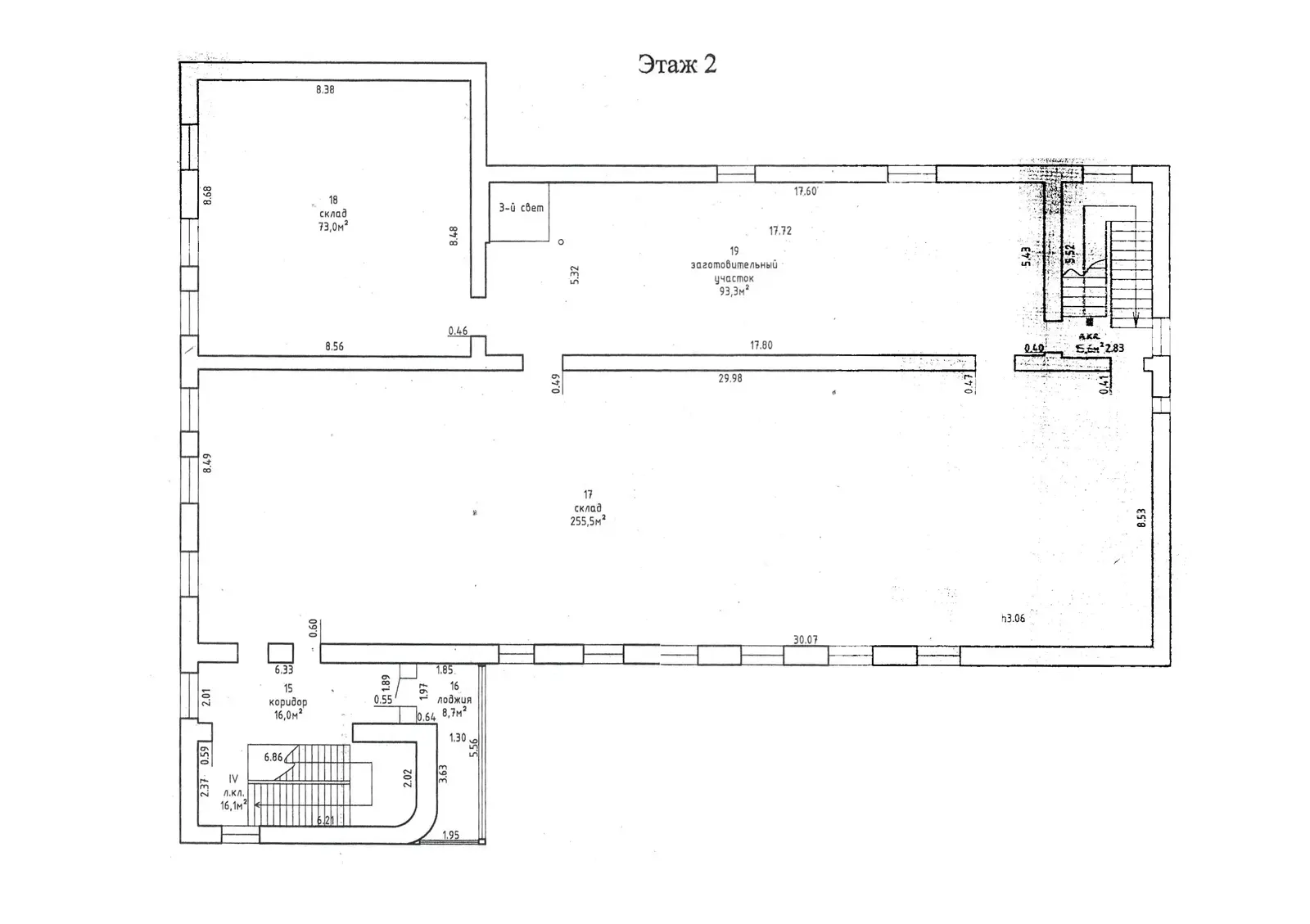
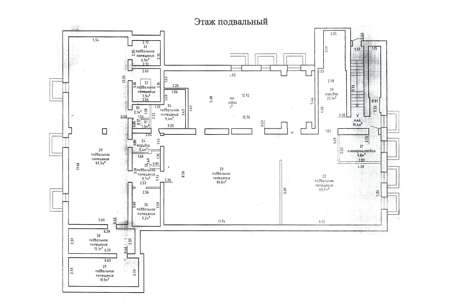
Сдаётся в аренду склад, расположенный на огражденной территории 0.2951 Га в агрогородке Пересады (Жодино - Борисов, Московское направление).


Имеются удобные подъездные пути с асфальтовым покрытием для грузовых/фур, рампа для разгрузки/погрузки, грузовой лифт (подвал – 2-й этаж) нагрузкой 2 тонны.

Проведённая электрическая мощность - 250 кВт.

Кроме складских имеются помещения для персонала: офисные, гардероб, душевые, комната приема пищи.

Проведены все коммуникации:

- электроснабжение;

- водоснабжение;

- отопление (своя котельная);

- вентиляция;

- канализация,

- оптоволокно;

- видеонаблюдение.

Цена без учета НДС.

Код объекта: 963842 Договор с собственником: 178/2а от 2024-05-28 Опубликовано: 30.04.2025 Обновлено: 17.12.2025
0 / 0 / 1
Динамика цен за кв. метрДинамика цен
Похожие объекты
Адрес
Комнат
Площадь
Этаж
Цена за м2
Цена
1500.6 м2
3 р. за м2
Склад, 1500.6 м2
Пересады, ул. Центральная, д. 2/б
5 731 р./мес.
3 р. за м2
Александр Крюков
Пожалуйста, скажите, что нашли этот объект на Domovita.by
+
Фильтр сохранен