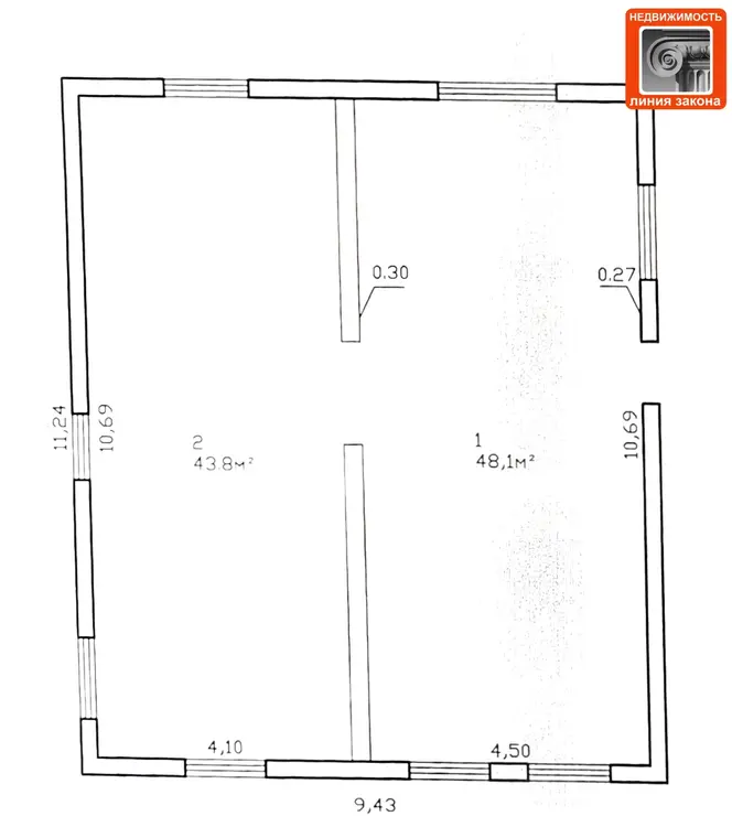
О доме
Площадь общая
181 м2
Площадь дома
181 м2
Участок
12.6 соток
В продаже
Целый дом
Год постройки
2011
Описание
Олег Маркович — Агент
9 лет на сайте
Показать почту
Пожаловаться на объявление
Агентство недвижимости
Недвижимость линия закона
УНП: 490680213 Лицензия: от 04.04.2008
Договор №: 21.01.2026 №26/1












