О доме
Площадь общая
304.7 м2
Площадь дома
304.7 м2
Участок
14.9 соток
В продаже
Целый дом
Год постройки
2018
Материал стен
Керамзитбетон
Материал крыши
Металлочерепица
Коммуникации
Отопление: Газовое
Водоснабжение: Скважина
Газ: В доме
Электричество: Есть
Телефон: Да
Канализация: 1
Описание
Продается двухуровневый коттедж в загородном клубном поселке "Дубровский квартал" в д. Прилепы. Находится по Логойскому направлению в 18 км от МКАД. Дом построен в современном архитектурном стиле.
Характеристики:
- фундамент - ленточный с перекрытием из монолитной наливной плиты;
- стены наружные - монолитные ж/б, блоки керамзитобетонные;
- внутренние перегородки - блоки керамзитобетонные, монолитные ж/б;
- все окна и витражи оборудованы энергосберегающими двухкамерными стеклопакетами;
- кровля (над цокольным этажом) - эксплуатируемая утеплённая по ж/б плите с покрытием из плитки;
- кровля (над 1-ым этажом) - скатная по деревянной стропильной системе, покрытие - фальц;
- газовое отопление. Тёплые полы везде кроме лестницы и пристройки. Газовый котёл VIESMANN мощностью 32 кВт;
- собственная скважина 67 м. Вода введена и разведена по дому;
- местная переливная канализация.
По дому разведена электрика (проходные выключатели, вывод под клавишу "мастер свет", настенные светильники, потолочные подвесные, потолочные точечные, на датчик движения, выводы под электрошторы). Вводной автомат установлен на 63 Ампера. Выведены провода под электроворота, зарядку электромобиля и солнечные электропанели.
По дому установлена приточно-вытяжная вентиляционная установка "ZENIT HECO V 900 W2R" с рекуперацией тепла и сохранения влаги. Оснащается жидкостным нагревателем и трехступенчатым рекуператором, который обеспечивает работу без преднагрева при уличной температуре - 35 С.
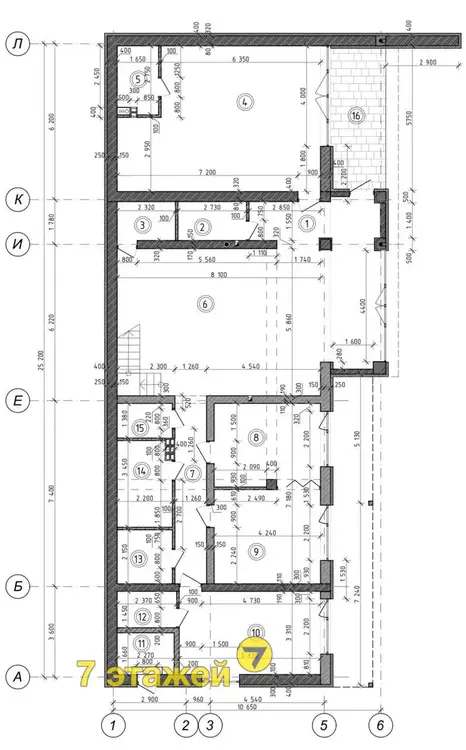
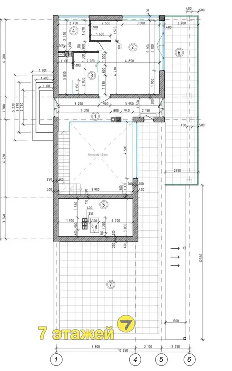
Дом спроектирован, как двухэтажный ( 1-ый - цокольный, 2-ой этаж)
Первый этаж состоит из большой кухни - гостиной ( предусмотрен второй свет) , 4-х жилых комнат, 3-х санузлов, 3-х гардеробных, топочной, кладовой, террасы, коридора и тамбура - холла.
Второй этаж состоит из просторных 2-х террас, рабочего кабинета и мастер - спальни.
Стены в гостиной облицованы ультратонкими керамическими плитами уникального формата от LAMINAM (устойчивые к воздействию химических веществ, устойчивы к износу и старению, полностью совместимы с пищевыми продуктами, не боятся самых стойких красок).
Площадь участка 14,9 соток. Сделан предварительный план по ландшафту. На участке имеется погреб. Также есть интересная задумка с большим гаражом, банным комплексом и личным бассейном. По периметру участка залит свайно - ростверковый фундамент под забор. Глубина свай 1.5 метра, диаметр 0.25м. Армирование 12 арматурой шаг 250 мм + хомут арматура шаг 250 мм.
Сам квартал находится в 18 километрах от МКАД по трассе Минск-Москва или Минск-Витебск на границе Смолевичского, Минского и Логойского районов. Такое расположение позволит Вам всего за полчаса доехать до столицы или аэропорта Минск-2, откуда ежедневно отправляются самолеты в Вену, Москву, Прагу, Варшаву, Берлин и прочие города.
Недалеко располагаются такие природные заказники, как:
Купаловский (ландшафтный);
Каменка (ботанический);
Антоново (бобровый);
Гайна-Бродня (гидрологический).
Также на территории Минской возвышенности, где располагается д. Прилепы, находится один из старейших белорусских памятников садово-паркового искусства, построенный одной из самых влиятельных в Беларуси семьей графов Тышкевичей в 19 веке. Кроме того, в Свято-Николаевской церкви в районном центре Логойск находится известный своими целебными свойствами родник, привлекающий паломников из стран не только ближнего, но и дальнего зарубежья.
Край Минской возвышенности называют Белорусской Швейцарией, за его удивительные природные характеристики. И не безосновательно. Минская возвышенность - это красивая холмистая местность с ледниковыми озерами, наполненными чистой и прозрачной водой, реки, впадающие в балтийское и черное моря, бескрайние хвойные леса. Вы можете любоваться такой природной красотой прямо из своего дома.
В самой деревне прилепы есть сад и детская школа, продуктовый магазин.
Кроме того, дом расположен неподалеку от спортивного комплекса Раубичи и рядом, а из окна красивый вид на Дубровское водохранилище. Горнолыжный курорт "Силичи". В 15 минут езды до фермерского рынка "Валерьяново".
Окажем помощь в продаже Вашей недвижимости для покупки этой.
Агент — Агент
9 лет на сайте
Показать почту
Пожаловаться на объявление
Агентство недвижимости
7 этажей
УНП: 192361483 Лицензия: от 14.11.2014 № 225
Договор №: 145/3 от 04.02.2025



























