Подать БЕСПЛАТНО

ОБЪЕКТ В АРХИВЕ

Фотографии отсутствуют

Продать 1-этажный дом в Пролейках, Гродненская область , 10000USD, код 652255

Гродненская область, д. Пролейки,
Показать на карте
28 328 р.
Код объекта: 652255
2 комнаты
60.6 м2
12 соток
Обновлено: 12.08.2025
28 328 р.
Предложить свою цену

О доме

Площадь общая
60.6 м2
Площадь дома
60.6 м2
Участок
12 соток
В продаже
Целый дом
Год постройки
1950
Материал стен
Блоки

Коммуникации

Отопление: Печное
Электричество: Есть

Описание

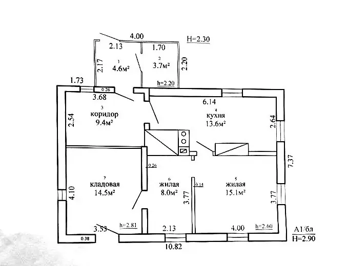
Продаётся жилой дом в 25 км от Гродно, в деревне Пролейки. Дом одноэтажный из бетонных ячеистых блоков, 1950 года постройки. Общая площадь дома - 60,6 м. кв., жилая – 23,1 м.кв. В доме две жилые комнаты, кухня 13,6 м.кв., кладовая и просторный коридор. Полы- деревянная доска. Крыша 2 года назад покрыта шифером. Окна - деревянные. Коммуникации: электричество - 220 В, газоснабжение- отсутствует, отопление - печное, водоснабжение - колодец, канализация- отсутствует. Жилой дом размещается на отдельном участке - 12 соток. Подъезд к дому- асфальтированная дорога, 400 м - грунтовая дорога. Недалеко от дома находится остановка общественного транспорта. Рядом лес. Отличное место для организации загородного отдыха. За подробной информацией просьба обращаться по телефону и пишите в Viber, Telegram.
ВалентинаАгент
5 лет на сайте
Показать почту
Пожаловаться на объявление
Агентство недвижимости
Юриэлт, филиал г. Гродно

Местоположение

Гродненская область, д. Пролейки,
Опубликовано: 12.08.2025