О доме
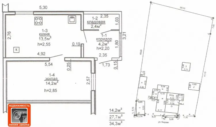
Площадь общая
27.7 м2
Площадь дома
27.7 м2
Участок
8.84 соток
В продаже
Целый дом
Год постройки
1956
Коммуникации
Отопление: Газовое
Электричество: Нет
Описание
Евгений Васильевич — Агент
9 лет на сайте
Показать почту
Пожаловаться на объявление
Агентство недвижимости
Недвижимость линия закона
УНП: 490680213 Лицензия: от 04.04.2008
Договор №: 19.11.2025 №475/1












