Подать БЕСПЛАТНО

Продажа 2-комнатной квартиры в Речице, ул. Комсомольская, д. 32

Гомельская область, г. Речица, ул. Комсомольская, 32
Показать на карте
57 366 р.
Цена за м2: 1 294 р.
Код объекта: 1192150
2 комнаты
44.3 м2
5 этаж из 5
Обновлено: 20.08.2025
57 366 р.
Цена за м2: 1 294 р.
Предложить свою цену

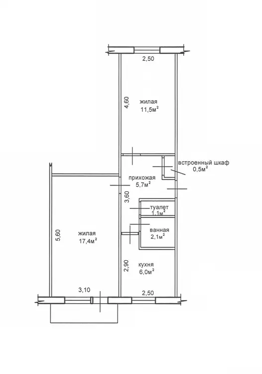
О квартире

Площадь
44.3 м2
общая
28.9 м2
жилая
6 м2
кухня
Отдельных комнат
2 комнаты
Санузел
Раздельный
Балкон
Балкон

О доме

Этаж
5 из 5
Материал стен
Панельный
Год постройки
1970

Описание

Предлагаем к продаже двухкомнатную квартиру, расположенную по ул. Комсомольской, д. 32 городе Речица Гомельской области.
Центр города. Окружающий район обладает развитой инфраструктурой. Остановки общественного транспорта.
- стандартная планировка квартиры площадью 44,0 кв.м;
- 5 этаж пятиэтажного панельного жилого дома 1970 г.п.;
- жилое состояние квартиры, без ремонта по современным стандартам;
- окна и балконная дверь застеклены ПВХ стеклопакетами;
- светлая, теплая квартира;
- квартира не угловая;
- санузел раздельный;
- установлены счётчики воды, газа, света;
- мебель и обстановка квартиры входят в стоимость продажи;
- капремонт в многоэтажном доме производился в 2024 году;
- имеется собственное подвальное помещение.
Квартира не подвергалась перепланировкам, имеется технический паспорт. Документы полностью готовы к продаже.

ЮлияАгент
6 лет на сайте
Условия сделки:Чистая продажа
Пожаловаться на объявление
Агентство недвижимости
Твой риэлтер

Местоположение

Гомельская область, г. Речица, ул. Комсомольская, 32
Опубликовано: 20.08.2025

Возможно, вам будет интересно