Подать БЕСПЛАТНО

Продажа 3-комнатной квартиры в Сенице, ул. Парковая, д. 4

Минская область, аг. Сеница, ул. Парковая, 4
Показать на карте
353 342 р.
Цена за м2: 4 009 р.
Код объекта: 1235163
3 комнаты
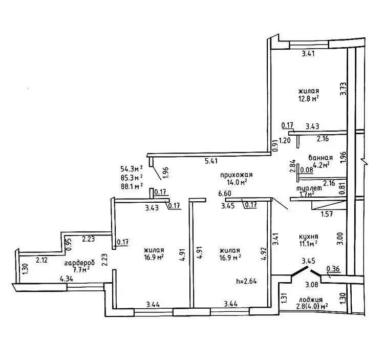
88.1 м2
4 этаж из 11
Обновлено: 25.03.2026
353 342 р.
Цена за м2: 4 009 р.
Предложить свою цену

О квартире

Площадь
88.1 м2
общая
54.3 м2
жилая
11.1 м2
кухня
Санузел
раздельный
Балкон
Лоджия
Тип ремонта
Хороший

О доме

Этаж
4 из 11
Материал стен
Панельный
Год постройки
2023

Описание

Вы мечтаете о своем уголке в зеленом пригороде Минска? Тогда вам понравится эта 3-комнатная квартира с прекрасной планировкой в новом доме по улице Парковая, 4 в аг. Сеница.

Это молодой и перспективный район, где есть все для комфортной жизни и отдыха.

Расположена квартира на 4-м этаже одиннадцатиэтажного панельного дома 2023 года постройки. Общая площадь квартиры составляет 88.1 м2 по СНБ

В квартире уложен ламинат, разведена электрика и установлена ванна.

Здесь вы найдете две просторные жилые комнаты, большую кухню с выходом на застекленную лоджию, где можно наслаждаться видом на природу.

Во дворе дома есть новая оборудованная детская площадка, где ваши дети будут в безопасности и веселье. Также есть большая свободная парковка, где вы всегда найдете место для своего автомобиля. В 380 метрах от дома протекает река «Сеница», где можно отдохнуть или просто погулять по берегу.

Вся инфраструктура в шаговой доступности: детский сад, новая школа с бассейном и большой спортивной площадкой, поликлиника и другие объекты. Рядом строится большой новый торговый центр «Сеница», где вы сможете сделать покупки.

Это прекрасный вариант для тех, кто любит большой город, но жить хочет в тишине и на свежем воздухе. Не упустите свой шанс приобрести квартиру своей мечты по доступной цене!

Лицензия: 02240/446 от 11.07.2022, Министерство юстиции РБ

ФатторияАгент
3 года на сайте
Условия сделки:продажа
Показать почту
Пожаловаться на объявление
Агентство недвижимости
"АН Фаттория"

Местоположение

Минская область, аг. Сеница, ул. Парковая, 4
Опубликовано: 25.03.2026

Возможно, вам будет интересно

Похожие объекты

На этой улицеВ этом доме
339 173 р.
Цена за м2: 4 224 р.
аг. Сеница, ул. Парковая
3-комн. кв
80.3
46.7
11.1 м2
5 этаж из 11
339 173 р.
Цена за м2: 4 224 р.
аг. Сеница, ул. Парковая
3-комн. кв
80.3
46.7
11.1 м2
5 этаж из 11