Выберите валюту для сайта:
BYN
Подать БЕСПЛАТНО

Продажа 2-этажной дачи в Сирена-1989 Брестская область, 87000USD, код 162072

200 м2
Дача
Город Сирена-1989
Адрес Сирена-1989
Год постройки 2019
  
Общая площадь 200 м2
Участок 6.35 соток
Площадь дома 200 м2
Этажей 2
Материал стен Блоки
Отделка С ремонтом
Тип отопления Газовое
Водоснабжение Скважина

Описание

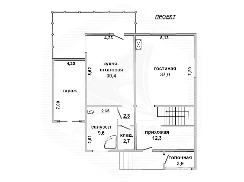
Дачный домик жилого типа в Брестском р-не. 2019 г.п. 2 этажа. Общ.СНБ ~ 200,0 кв.м, жил.~ 70,0 кв.м, кух.~ 30,38 кв.м. 5 комнат. Стены: материал - газосиликатный блок; утепление - пенополистирол; отделка фасада - штукатурка "американка". Кровля: металлочерепица. Фундамент: ленточный монолитный; материал - бетон; подушка - бетонная. Коммуникации: отопление - газовый котел, газ - централизованный, водоснабжение - скважина и гидрофор, электричество - централизованное, канализация - автономная. Участок - 0,0635 га. Лот - 191807. Смотреть подробнее.

Здесь можно подписаться на рассылку новых предложений и снижения цен по ДАЧАМ и УЧАСТКАМ в Брестском регионе прямо Вам в Viber или Telegram ЗАО «АЛЬТЕРНАТИВА Брест». УНП 291427570 Лицензия № 02240/303 от 02.02.2016г. Договор номер 1807/1 от 14.06.2019
Код объекта: 162072 Договор с собственником: 14.06.2019 №1807/1 Опубликовано: 08.07.2020 Обновлено: 28.01.2026
0 / 0 / 43
Дача, 200 м2
Сирена-1989
249 203 р.
Царук Сергей Васильевич
Пожалуйста, скажите, что нашли этот объект на Domovita.by
+
Фильтр сохранен