Продажа 2-этажной дачи в Пищевик Минская область, 17000USD, код 185477

97.6 м2
Дача
Город Пищевик
Адрес Пищевик
Направление Мядельское
Удаленность от МКАД 35 км
Год постройки 1990
  
Общая площадь 97.6 м2
Участок 6.95 соток
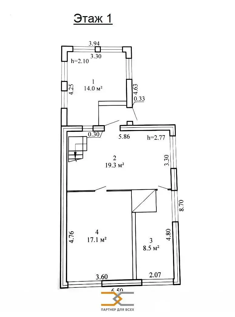
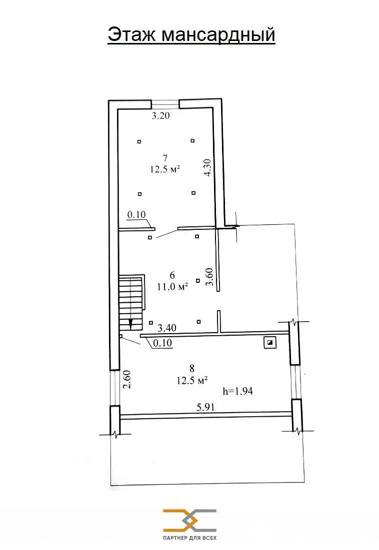
Площадь дома 97.6 м2
Этажей 2
Материал стен Кирпич
Тип отопления Печное
Канализация Есть

Описание

Продаётся уютный дачный домик с земельным участком в с/т "Чаровница" Логойского района Минской области, Мядельское направление.

Садовое товарищество находится в 35 км от Минска на территории "Купаловского" заказника, в окружении леса.

Домик просторный, 97.6 кв.м. общей площади. На первом этаже 3 комнаты, летняя кухня ,есть жилой мансардный этаж.

Отопление печное, вода сезонная, канализация местная.

Участок в частной собственности 6.95 соток, огорожен, с небольшим уклоном. На участке стоит отдельно стоящая баня.

Хорошие подъездные пути. Остановка автобуса в 300 м. Автобус ходит по расписанию.

Есть возможность купить смежный второй участок, который находится по торцу этого участка. Хорошие соседи.

ООО «Партнер для всех», УНП 690665135, лицензия Министерства юстиции Республики Беларусь № 02240/321 от 02.12.2016, договор на оказание риэлтерских услуг № 53/7 от 08.04.2026г.

Код объекта: 185477 Договор с собственником: 53/7 от 2026-04-08 Опубликовано: 11.04.2026 Обновлено: 11.04.2026
16 / 24 / 24
Дача, 97.6 м2
Пищевик
48 304 р.
Ирина
Пожалуйста, скажите, что нашли этот объект на Domovita.by
+
Фильтр сохранен