Подать БЕСПЛАТНО

ОБЪЕКТ В АРХИВЕ

Фотографии отсутствуют

Продажа 1-этажного дома в Заречном, Минская область ул. Полевая, 119900USD, код 651914

Минская область, д. Заречное, ул. Полевая
Показать на карте
Раковское направление
24 км от МКАД
339 377 р.
Код объекта: 651914
3 комнаты
110 м2
25 соток
Обновлено: 02.10.2025
339 377 р.
Предложить свою цену

О доме

Площадь общая
110 м2
Площадь дома
110 м2
Участок
25 соток
В продаже
Целый дом
Готовность дома, %
100
Год постройки
2016
Материал стен
Брус профильный
Материал крыши
Шифер

Коммуникации

Отопление: Газовое
Водоснабжение: Скважина
Газ: В доме
Электричество: Есть
Канализация: 1

Описание

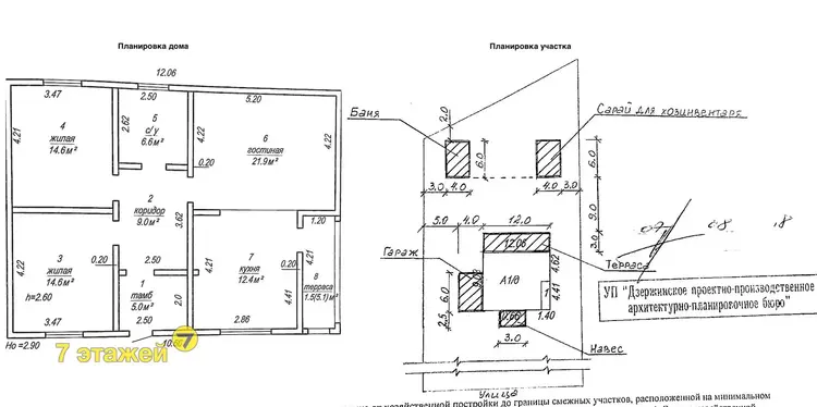
Продается уютный одноэтажный дом в деревне Заречное. Раковское направление в 24 км от Минска СНБ 110 м², общая 85,6 м², жилая 51,1 м², кухня 12,4 м² Планировка - 2 спальни (14,6 м2+14,6 м2), кухня и гостиная кухня: 12,4 м2, гостиная: 21,9 м2, ванная совмещенная: 6,6 м2, прихожая: 9,0 м2. застеклённая терраса: 5,1 м2, крытая терраса 25 м2. На входе в дом утеплённый тамбур с мини-котельной, из гостиной имеется выход на просторную крытую террасу 25 м2. Характеристики: 1. Фундамент: Монолитная Плита 11х12; 2. Стены : Профилированный брус (200х200); 3. Крыша : . Евро-шифер. Утеплитель: минеральная вата + паро-гидроизоляционная плёнка. 4. Перекрытия Деревянные балки; 5. Окна Двухкамерные стеклопакеты, brusbox 70. Защита от ультрафиолета. 6. Участок: 25 соток в Частной собственности +5 соток в ЛПХ. Расположены: хоз.постройка, уличный бассейн, детский батут, зона - барбекю. По периметру высажены многолетние деревья, живая аллея из 70 туй; 7. Коммуникации: Переливная канализация (2 колодца) Отопление ГАЗовое ( 2-х контурный котел "Ferroli"). В жилых комнатах установлены батареи, водяные теплые полы. Электричество 220 В, выделенная мощность на дом 9 кВт, с дальнейшим увеличением Водоснабжение скважина 78 м Рядом с домом протекает река Птичь. Живописные и грибные места. Красивая природа и тишина. Ближайшие базы отдыха: База отдыха «Форельки» расстояние: 8.7 км. Усадьба «Пигасово» расстояние: 9.0 км. Коттедж «У Пруда» в Пигасово расстояние: 9.0 км. Коттедж «Белый домик у пруда» с аква-зоной расстояние: 9.2 км. Усадьба «Узгорье-VIP» 10 км от Минска, Скидка для двоих коттедж+ баня 20% расстояние: 9.9 км. Агроусадьба «Гринкевичи» расстояние: 10.5 км. Агроусадьба «Лабодянка» расстояние: 14.0 км. Агроусадьба «Берёзка» расстояние: 16.5 км. Загородный клуб «Фестивальный» расстояние: 17.4 км. Михалово расстояние: 18.1 км. В 15 км расположен парк активного отдыха «Якутские горы» . Ивент-площадка «Якутские горы» – наилучшее место для организации и проведения корпоративов и тимбилдингов, свадеб на природе, тематических мероприятий:тест-драйвов, фестивалей, шоу и других специальных событий. Прекрасный вариант для тех, кто ищет комфорт в сочетании со спокойствием загородной жизни! Не упустите действительно выгодное предложение!
АгентАгент
9 лет на сайте
Показать почту
Пожаловаться на объявление
Агентство недвижимости
7 этажей

Местоположение

Минская область, д. Заречное, ул. Полевая
Опубликовано: 02.10.2025