Подать БЕСПЛАТНО

Продать 2-этажный коттедж в Бресте, Брестская область , 160000USD, код 627161

г. Брест,
Показать на карте
520 412 р.
Код объекта: 627161
372.3 м2
12.05 соток
Обновлено: 17.09.2023
520 412 р.
Предложить свою цену

О доме

Площадь общая
372.3 м2
Площадь дома
372.3 м2
Участок
12.05 соток
В продаже
Целый дом
Год постройки
2006
Материал стен
Блоки
Материал крыши
Шифер

Удобства

Гараж

Коммуникации

Отопление: Газовое
Водоснабжение: Центральное
Газ: В доме
Электричество: Есть

Описание

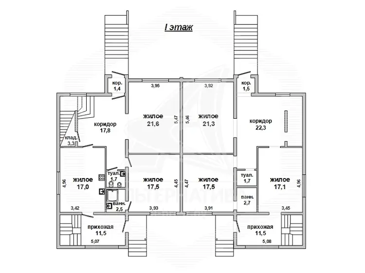
Жилой дом в г.Бресте. 2006 г.п. 2 этажа, цокольный этаж. Общ.СНБ - 545,9 кв.м, общ.- 372,3 кв.м, жил.- 155,4 кв.м, кух.- 17,1 кв.м. + 17,0 кв.м. 8 комнат, потолки - 2,9 м. Стены: материал - газосиликатный блок; утепление - пенополистирол; отделка фасада - композитный сайдинг. Кровля: шифер. Фундамент: ленточный сборный; материал - блок ФБС; подушка - бетонная и гравийная. Коммуникации: отопление - газовый котел, газ - централизованный, водоснабжение - централизованный водопровод и скважина на участке, электричество - централизованное, канализация - автономная и централизованная (по улице). Хоз.постройки: два гаража в цокольном этаже. Возможен раздел дома на две квартиры (квартира № 1: ~271,1/175,1/77,5/17,0; квартира № 2: ~275,0/177,5/77,9/17,1) Участок - 0,1205 га. Лот - 183197. Смотреть подробнее.

Здесь можно подписаться на рассылку новых предложений и снижения цен по ДОМАМ и УЧАСТКАМ в Брестском регионе прямо Вам в Viber или Telegram ЗАО «АЛЬТЕРНАТИВА Брест». УНП 291427570 Лицензия № 02240/303 от 02.02.2016г. Договор номер 3197/1 от 04.12.2018
Семечко Наталья НиколаевнаАгент
9 лет на сайте
Показать почту
Пожаловаться на объявление
Агентство недвижимости
АЛЬТЕРНАТИВА Брест

Местоположение

г. Брест,
Опубликовано: 17.09.2023

Похожие объекты

В этом районе
487 370 р.
Ленинский район,
136.9
60
38.1 м2
10.01 соток
812 283 р.
Ленинский район,
172.5
99.4
21 м2
13.73 соток
495 630 р.
Ленинский район,
170.9
108
14.2 м2
14.6 соток