Выберите валюту для сайта:
BYN
Подать БЕСПЛАТНО

Купить 2-этажную дачу в Бресте Брестская область, 67500USD, код 178350

Ленинский район 107.9 м2
225 660 р.
Дача
Город Брест
Район Ленинский район
Микрорайон Катин Бор
Адрес Брест
  
Общая площадь 107.9 м2
Участок 5.00 соток
Площадь дома 107.9 м2
Этажей 2
Материал стен Кирпич
Отделка С ремонтом
Тип отопления Газовое
Водоснабжение Скважина

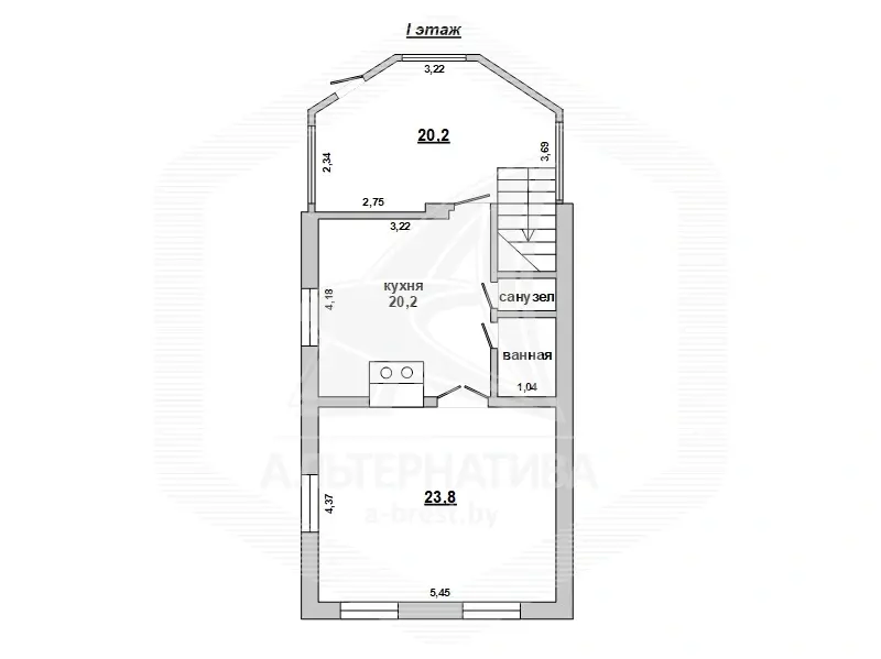
Описание

Дачный дом жилого типа в г.Бресте.1 этаж, мансарда. Общ.СНБ - 107,9 кв.м, 3 комнат. Стены: материал - силикатный кирпич; отделка фасада - силикатный кирпич. Кровля: еврошифер (ондулин). Фундамент: ленточный монолитный; материал - бетон. Коммуникации: отопление - газовый котел и печь, газ - централизованный (в доме), водоснабжение - скважина и гидрофор, электричество - централизованное, канализация - автономная. Хоз.постройки: гараж, хозблок. Участок - 0,0500 га. Лот - 241145. Смотреть подробнее.

Здесь можно подписаться на рассылку новых предложений и снижения цен по ДАЧАМ и УЧАСТКАМ в Брестском регионе прямо Вам в Viber или Telegram ЗАО «АЛЬТЕРНАТИВА Брест». УНП 291427570 Лицензия № 02240/303 от 02.02.2016г. Договор номер 1145/1 от 28.05.2024
Код объекта: 178350 Договор с собственником: 28.05.2024 №1145/1 Опубликовано: 17.05.2024 Обновлено: 14.03.2026
0 / 1 / 113
Похожие объекты
Адрес
Комнат
Площадь
Этаж
Цена за м2
Цена
1-этажная дача, г. Брест, Брестский р-н
128.2 м2
2-этажная дача, г. Брест, Брестский р-н
100 м2
1-этажная дача, г. Брест, Брестский р-н
24.8 м2
2-этажная дача, г. Брест, Брестский р-н
85.5 м2
1-этажная дача, г. Брест, Брестский р-н
25.9 м2

Вы просматривали

228 669 р.
Московский р-н
49 645 р.
Ленинский р-н
203 094 р.
Ленинский р-н
Дача, 107.9 м2
Брест
203 094 р.
Антонова Татьяна Александровна
Пожалуйста, скажите, что нашли этот объект на Domovita.by
+
Фильтр сохранен