О квартире
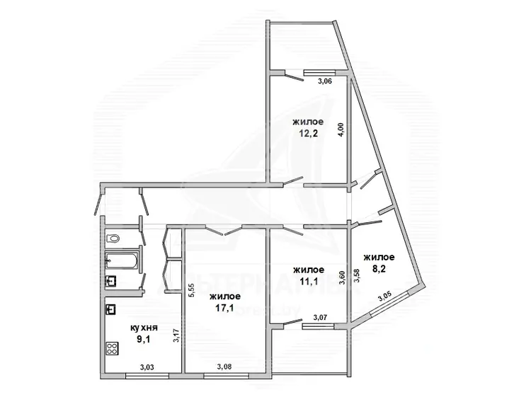
Площадь
37.5 м2
общая
20.6 м2
жилая
8.9 м2
кухня
Санузел
совмещенный
Балкон
Лоджия
Тип ремонта
Хороший
О доме
Этаж
3 из 9
Материал стен
Кирпичный
Год постройки
1989
Описание
Риабай недвижимость — Юридическое лицо
3 года на сайте
Условия сделки:продажа
Показать почту
Пожаловаться на объявление




























