BYN
Подать БЕСПЛАТНО
Продажа
Аренда
Посуточно
NEW
Новостройки
Коммерческая
Собственникам
BYN
Продажа
Квартиры
1-комнатные
2-комнатные
3-комнатные
4-комнатные
Комнаты в квартире
Новостройки
Агентства недвижимости
Купить квартиру в Минске
Кредиты на недвижимость
Дома
Участки
Дачи
Коттеджи
Купить дом в Минске
Аренда
На длительный срок
Комнаты
Снять квартиру в Минске
Коттеджи и дома
Гаражи
Посуточно
Квартиры на сутки
Аренда квартир на сутки
Снять квартиру на сутки в Минске
Коттеджи на сутки
Новостройки
Новостройки
Каталог застройщиков
Новостройки Минска
Коммерческая
Аренда
Офис в Бресте
Склад в Бресте
Торговое помещение в Бресте
Помещение под сферу услуг в Бресте
Офис в Минске
Склад в Минске
Торговые площади в Минске
Помещение под сферу услуг в Минске
Продажа
Офис в Бресте
Склад в Бресте
Торговое помещение в Бресте
Помещение под сферу услуг в Бресте
Бизнес-центры в Бресте
Торговые центры в Бресте
Офис в Минске
Склад в Минске
Торговые площади в Минске
Помещение под сферу услуг в Минске
Собственникам
Журнал
Квартиры
Новостройки
Гайды
Новости партнеров
События
Суточная аренда
Дома
Конвертер валют
USD/BYN
EUR/BYN
USD/RUB
Собственникам
Добавить объявление
Оценить квартиру online
Недвижимость Бреста
Купить квартиру в Бресте
2-комнатные квартиры
2-комнатная квартира, Брест, ул. Веселая
Фото
О квартире
О доме
Описание
На карте
ОБЪЕКТ В АРХИВЕ
Купить 2-комнатную квартиру в Бресте, ул. Веселая
г. Брест,
ул. Веселая
Показать на карте
Ленинский район
148 980 р.
163 878 р.
Цена за м
2
: 3 170 р.
Код объекта: 690935
В избранное
2 комнаты
51.7 м
2
1 этаж из 1
Обновлено: 09.07.2020
148 980 р.
163 878 р.
Цена за м
2
: 3 170 р.
Предложить свою цену
ОБЪЕКТ В АРХИВЕ
+5 фото
О квартире
О доме
Описание
На карте
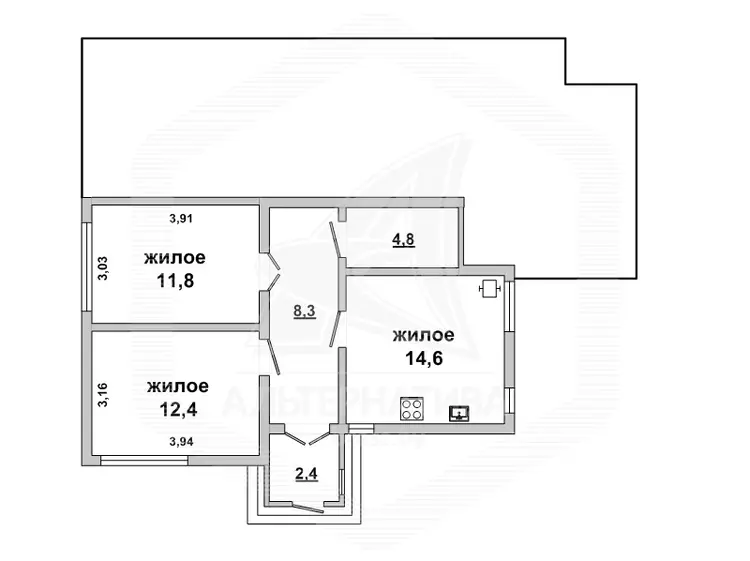
О квартире
Площадь
51.7 м
2
общая
24.2 м
2
жилая
14.5 м
2
кухня
Отдельных комнат
2 комнаты
Санузел
совмещенный
Балкон
Балкон
Тип ремонта
С ремонтом
О доме
Этаж
1 из 1
Материал стен
Кирпичный
Год постройки
1970
Описание
Квартира в блокированном доме в г.Бресте. 1970 г.п, пристройка 2013 г. 1 этаж. Общ.СНБ - 54,1 кв.м, общ.- 51,7 кв.м, жил.- 24,2 кв.м, кух.-nbsp; 14,5 кв.м. 2 комнаты. Стены: материал - кирпич керамический, газосиликатный блок; утепление - пенополистирол (пристройка), отделка фасада - оштукатурен. Кровля: шифер. Фундамент: кирпичная кладка, ленточный монолитный; материал - обожженный кирпич, бетон; подушка - бетонная. Коммуникации: отопление - газовый котел, газnbsp; - централизованный, водоснабжение - централизованное, электричество - централизованное, канализация - автономная.nbsp; Хоз.постройки: гараж. Участок -nbsp; 0,250 га (3/5 доли от 0,427 га). Лот - 972139. Смотреть подробнее.
Здесь можно подписаться на рассылку новых предложений и снижения цен по КВАРТИРАМ в Брестском регионе прямо Вам в Viber или Telegram ЗАО «АЛЬТЕРНАТИВА Брест». УНП 291427570 Лицензия № 02240/303 от 02.02.2016г. Договор номер 2139/1 от 22.09.2017
Всё описание
Царук Сергей Васильевич — агент
9 лет на сайте
Условия сделки:
Чистая продажа
+ 375... Показать номер
Написать продавцу
Показать почту
Пожаловаться на объявление
Агентство недвижимости
АЛЬТЕРНАТИВА Брест
УНП: 291427570
Лицензия: от 02.02.2016 № 21
Договор №: 22.09.2017 №2139/1
Местоположение
г. Брест,
ул. Веселая
Ленинский район
Опубликовано: 09.07.2020
143
Возможно, вам будет интересно
Добавь объявление бесплатно
Размещай объявление в любой категории Бесплатно
Квартиры по горячим ценам
Квартиры Минск и пригород
Похожие объекты
Все объявления
В этом районе
125 143 р.
138 253 р.
Цена за м
2
: 3 380 р.
1-комнатная квартира, Брест, ул. Мичурина
Ленинский район,
ул. Мичурина
1-комн. кв
40.9
17.1
8.8 м
2
3 этаж из 9
Показать номер
58 996 р.
76 874 р.
Цена за м
2
: 1 588 р.
2-комнатная квартира, Брест, ул. Писателя Смирнова
Ленинский район,
ул. Писателя Смирнова
2-комн. кв
48.4
35
6.2 м
2
1 этаж из 1
Показать номер
125 143 р.
168 347 р.
Цена за м
2
: 2 513 р.
4-комнатная квартира, Брест, ул. Бауманская
Ленинский район,
ул. Бауманская
4-комн. кв
67
47.8
6.9 м
2
1 этаж из 5
Показать номер
Показать ещё
Недвижимость Бреста
Купить квартиру в Бресте
2-комнатные квартиры
2-комнатная квартира, Брест, ул. Веселая
Позвонить
Главная
Избранное
Объявления
Профиль