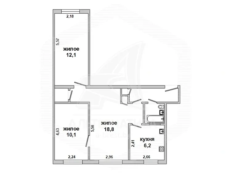
О квартире
Площадь
56.3 м2
общая
41 м2
жилая
6.2 м2
кухня
Отдельных комнат
3 комнаты
Санузел
совмещенный
Балкон
Лоджия
Тип ремонта
-
О доме
Этаж
2 из 5
Материал стен
Кирпичный
Год постройки
1964
Описание
Шкулепа Наталья Евгеньевна — Агент
9 лет на сайте
Условия сделки:Обмен
Показать почту
Пожаловаться на объявление
Агентство недвижимости
АЛЬТЕРНАТИВА Брест
УНП: 291427570 Лицензия: от 02.02.2016 № 21
Договор №: 17.08.2020 №2771/1







































