Подать БЕСПЛАТНО

Купить 3-комнатную квартиру в Бресте, ул. Белорусская

г. Брест, ул. Белорусская
Показать на карте
Ленинский район
132 477 р.
Цена за м2: 3 010 р.
47 993 $
1 091 $/м2
Код объекта: 1139777
3 комнаты
44 м2
1 этаж из 1
Обновлено: 01.03.2025
132 477 р.
Цена за м2: 3 010 р.
47 993 $
1 091 $/м2
Предложить свою цену

О квартире

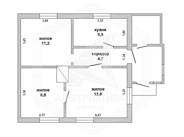
Площадь
44 м2
общая
33.8 м2
жилая
5.5 м2
кухня
Отдельных комнат
3 комнаты
Санузел
-
Балкон
Балкон
Тип ремонта
-

О доме

Этаж
1 из 1
Материал стен
Кирпичный
Год постройки
1961

Описание

Квартира в блокированном жилом доме в г.Бресте. 1961 г.п. 1 этаж. Общ.СНБ - 51,7 кв.м, общ.- 44,0 кв.м, жил.- 33,8 кв.м, кух.- 5,5 кв.м. 3 комнаты, высота потолка - 2,65 м. Стены: материал - силикатный кирпич; утепление - пенополистирол (пенопласт); отделка фасада - оштукатурен, окрашен. Кровля: шифер. Фундамент: ленточный монолитный; материал - бетон. Коммуникации: отопление - газовый котел и печь, газ - централизованный (в доме), водоснабжение - централизованный водопровод, электричество - централизованное, канализация - централизованная. Хоз.постройки: погреб, сарай. Участок - 0,1500 га. Лот - 950436. Смотреть подробнее.

Здесь можно подписаться на рассылку новых предложений и снижения цен по КВАРТИРАМ в Брестском регионе прямо Вам в Viber или Telegram ЗАО «АЛЬТЕРНАТИВА Брест». УНП 291427570 Лицензия № 02240/303 от 02.02.2016г. Договор номер 436/1 от 28.02.2025
Сацюк Андрей ВладимировичАгентство
9 лет на сайте
Условия сделки:Чистая продажа
Показать почту
Пожаловаться на объявление
Агентство недвижимости
АЛЬТЕРНАТИВА Брест

Местоположение

г. Брест, ул. Белорусская
Ленинский район
Опубликовано: 01.03.2025

Возможно, вам будет интересно

Похожие объекты

В этом районе
184 920 р.
Цена за м2: 3 238 р.
66 990 $
1 173 $/м2
Ленинский район, ул. Лейтенанта Рябцева
2-комн. кв
57.1
28
9.3 м2
6 этаж из 7
281 241 р.
Цена за м2: 2 473 р.
101 885 $
896 $/м2
Ленинский район, ул. Лейтенанта Рябцева
3-комн. кв
113.7
62
15.8 м2
1 этаж из 4
171 120 р.
Цена за м2: 2 516 р.
61 991 $
912 $/м2
Ленинский район, ул. Дубровская
3-комн. кв
68
46.3
9.9 м2
5 этаж из 5