Подать БЕСПЛАТНО

Продажа 3-комнатной квартиры в Бресте, ул. Пригородная

г. Брест, ул. Пригородная
Показать на карте
Ленинский район
131 666 р.
Цена за м2: 1 566 р.
Код объекта: 1008731
3 комнаты
84.1 м2
1 этаж из 2
Обновлено: 24.05.2024
131 666 р.
Цена за м2: 1 566 р.
Предложить свою цену

О квартире

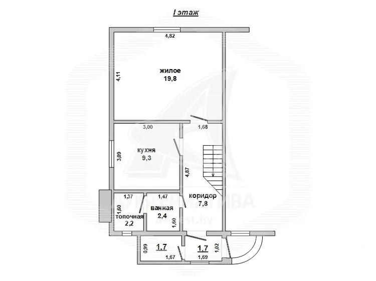
Площадь
84.1 м2
общая
53.1 м2
жилая
9.3 м2
кухня
Отдельных комнат
3 комнаты
Санузел
-
Балкон
Лоджия
Тип ремонта
-

О доме

Этаж
1 из 2
Материал стен
Бревенчатый

Описание

Квартира в блокированном жилом доме в г.Бресте. г.п. 2 этажа. Общ.СНБ - 87,5 кв.м, общ.- 84,1 кв.м, жил.- 53,1 кв.м, кух.- 9,3 кв.м. 3 комнаты, высота потолка - 2,56 м.Стены: материал - строительный брус; утепление - пенополистирол (пенопласт); отделка фасада - виниловый сайдинг. Кровля: шифер. Фундамент: ленточный монолитный; материал - бетон; подушка - бетонная.Коммуникации: отопление - котел на твердом и жидком топливе, газ - централизованный (по улице, взносы не оплачены), водоснабжение - скважина, гидрофор и централизованный водопровод (по улице), электричество - централизованное, канализация - централизованная. Участок - 0,0180 га (3/8 доли от 0,0480 га). Лот - 941081. Смотреть подробнее.

Здесь можно подписаться на рассылку новых предложений и снижения цен по КВАРТИРАМ в Брестском регионе прямо Вам в Viber или Telegram ЗАО «АЛЬТЕРНАТИВА Брест». УНП 291427570 Лицензия № 02240/303 от 02.02.2016г. Договор номер 1081/1 от 18.05.2024
Антонова Татьяна АлександровнаАгент
9 лет на сайте
Условия сделки:Обмен
Показать почту
Пожаловаться на объявление
Агентство недвижимости
АЛЬТЕРНАТИВА Брест

Местоположение

г. Брест, ул. Пригородная
Ленинский район
Опубликовано: 24.05.2024

Возможно, вам будет интересно

Похожие объекты

На этой улицеВ этом районе
46 229 р.
Цена за м2: 1 934 р.
Ленинский район, ул. Пригородная
2-комн. кв
23.9
17.7
6.2 м2
1 этаж из 1
154 195 р.
Цена за м2: 3 592 р.
Ленинский район, ул. Пригородная
2-комн. кв
44.8
25.2
7.2 м2
4 этаж из 5
160 047 р.
Цена за м2: 4 279 р.
Ленинский район, ул. Пригородная
1-комн. кв
37.4
17.1
7.3 м2
4 этаж из 5
122 888 р.
Цена за м2: 3 319 р.
Ленинский район, ул. Мичурина
1-комн. кв
40.9
17.1
8.8 м2
3 этаж из 9
57 933 р.
Цена за м2: 1 560 р.
Ленинский район, ул. Писателя Смирнова
2-комн. кв
48.4
35
6.2 м2
1 этаж из 1
122 888 р.
Цена за м2: 2 467 р.
Ленинский район, ул. Бауманская
4-комн. кв
67
47.8
6.9 м2
1 этаж из 5