Выберите валюту для сайта:
BYN
Подать БЕСПЛАТНО

Купить офис в Бресте, 375000USD, код 5387

467.6 м2 3 этаж из 3 Ленинский район / Центр
1 085 888 р.
Офис
Город Брест
Район Ленинский район
Микрорайон Центр
Адрес Брест
Площадь 467.6 м2
Этаж 3
Удобства
Кондиционер

Описание

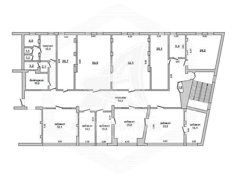
Административное помещение в собственность в центре города Бреста общей площадью 467,6 кв.м. Изолированное помещение расположено на 4 (четвертом) этаже административно - торгового комплекса, расположенного на главной пешеходной улице города. Состоит из 12 (двенадцати) кабинетов разной площади (14,1 + 33,5 + 26,9 + 13,2 + 14,2 + 32,1 + 26,7 + 50,5 + 52,5 + 26,1 + 9,4 + 26,2 кв.м). Коридор, подсобные помещения, комната приема пищи, несколько отдельных санузлов. Технические характеристики помещения: полы - плитка, стены оштукатурены, окрашены, окна, двери - ПВХ. Оборудована пожарная сигнализация, установлены индивидуальные приборы учета электроэнергии и водоснабжения, кондиционеры, проведено оптоволокно. Цена указана с НДС. Рассматриваются все варианты. Лот - 223500. Смотреть подробнее.

Здесь можно подписаться на рассылку новых предложений и снижения цен по КОММЕРЧЕСКОЙ НЕДВИЖИМОСТИ в Брестском регионе прямо Вам в Viber или Telegram ЗАО «АЛЬТЕРНАТИВА Брест». УНП 291427570 Лицензия № 02240/303 от 02.02.2016г. Договор номер 3500/1 от 28.11.2022
Код объекта: 5387 Договор с собственником: 28.11.2022 №3500/1 Опубликовано: 03.12.2022 Обновлено: 27.11.2025
Динамика цен за кв. метрДинамика цен
Похожие объекты
Адрес
Комнат
Площадь
Этаж
Цена за м2
Цена
Офис в Бресте
2005.3 м2
2 592 р. за м2
Офис в Бресте
162.2 м2
4 из
3 330 р. за м2
Офис в Бресте
230.3 м2
2 892 р. за м2
Офис в Бресте
153 м2
1 из
3 407 р. за м2
Офис в Бресте
172.6 м2
1 из 1
7 550 р. за м2

Вы просматривали

217 178 р. 1 519 р. за м2
Московский р-н
540 048 р. 3 330 р. за м2
Ленинский р-н
1 447 850 р. 3 760 р. за м2
Московский р-н
1 085 888 р. 2 322 р. за м2
Ленинский р-н
188 221 р. 3 749 р. за м2
Московский р-н
107 141 р. 1 666 р. за м2
Ленинский р-н
96 137 р. 2 317 р. за м2
Партизанский р-н
Офис, 467.6 м2
Брест
1 085 888 р.
2 322 р. за м2
Ярмоцик Андрей Петрович
Пожалуйста, скажите, что нашли этот объект на Domovita.by
+
Фильтр сохранен