Выберите валюту для сайта:
BYN
Подать БЕСПЛАТНО

Купить помещение под сферу услуг в Бресте,

247 м2 1 этаж из 1 Ленинский район / Речица
1 077 662 р.
1 019 410 р.
Сервис
Город Брест
Район Ленинский район
Микрорайон Речица
Адрес Брест
Площадь 247 м2
Этаж 1
Удобства
Телефон
Отдельный вход
Видеонаблюдение

Описание

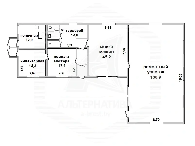
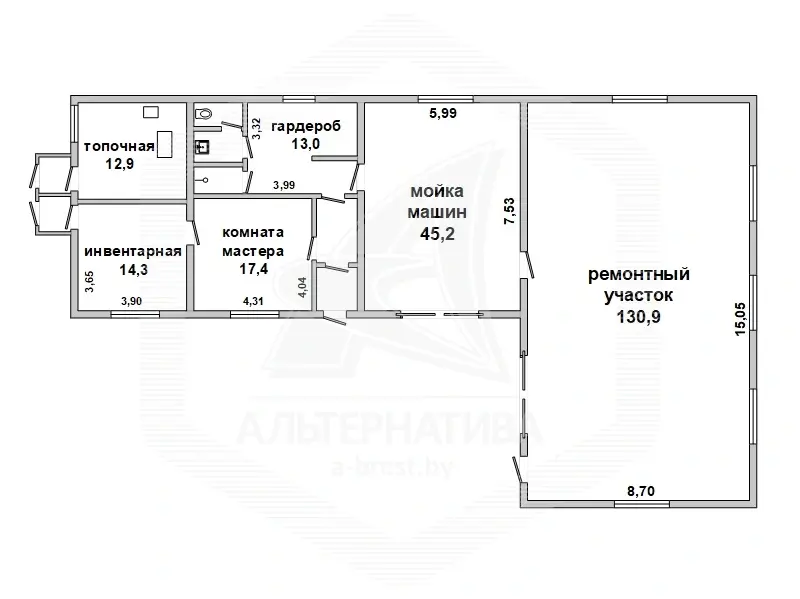
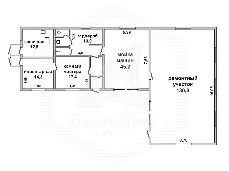
Автосервис (назначение - здание специализированное для ремонта и технического обслуживания автомобилей с мойкой) с оборудованием в собственность в районе ул. Писателя Смирнова города Бреста общей площадью 247 кв.м. Действующий объект с полным комплектом оборудования. Состоит из 2 (двух) изолированных помещений с отдельным входом (въездом) каждое: 1) Ремонтная зона площадью 130,9 кв.м. Высота потолков - 4,30 м. 2) Мойка машин площадью 45,2 кв.м. Высота потолков - 3,01 м. В здании есть помещение для магазина запчастей (17,4 кв.м), подсобное помещение (14,3 кв.м), гардероб (13 м), отдельный санузел, собственная газовая топочная. Технические характеристики здания: фундамент бетонный, полы бетонные, наливные, плитка, стены блочные, кирпичные, перекрытия ж/бетонные панели, крыша металлическая. В здании оборудована приточно-вытяжная вентиляция, пожарная сигнализация, проведено видеонаблюдение. Все центральные коммуникации: электричество - 220, 380 Вт (входная мощность до 25 кВт), газовое отопление (собственная топочная), водоснабжение центральное, канализация центральная. Земельный участок площадью 0,0706 га предоставлен собственнику в долгосрочную аренду (до 09.08.2061 г.) для обслуживания автосервиса. Прилегающая территория асфальтирована, огорожена забором. Асфальтные подъездные пути. В стоимость входит все оборудование, находящееся в автосервисе (в т.ч. 3 (три) подъемника (2 на 3,5 т, 1 на 4 т), развал - схождение 3D, моечный аппарат, разнообразные наборы ключей, мебель и т.д). Варианты аренды автосервиса НЕ РАССМАТРИВАЮТСЯ. Контактный телефон (029)202-66-19 (Александр Александрович) Лот - 210543. Смотреть подробнее.

Здесь можно подписаться на рассылку новых предложений и снижения цен по КОММЕРЧЕСКОЙ НЕДВИЖИМОСТИ в Брестском регионе прямо Вам в Viber или Telegram ЗАО «АЛЬТЕРНАТИВА Брест». УНП 291427570 Лицензия № 02240/303 от 02.02.2016г. Договор номер 543/1 от 26.02.2021
Код объекта: 1495 Договор с собственником: 26.02.2021 №543/1 Опубликовано: 04.03.2021 Обновлено: 29.11.2025
0 / 1 / 6
Динамика цен за кв. метрДинамика цен
Похожие объекты
Адрес
Комнат
Площадь
Этаж
Цена за м2
Цена
232 м2
1 из 2
687 р. за м2

Вы просматривали

58 252 р. 420 р. за м2
Московский р-н
1 281 544 р. 879 р. за м2
Московский р-н
1 019 410 р. 4 127 р. за м2
Ленинский р-н
253 396 р. 954 р. за м2
Ленинский р-н
349 512 р. 1 309 р. за м2
Ленинский р-н
Сервис, 247 м2
Брест
1 019 410 р.
4 127 р. за м2
Ярмоцик Андрей Петрович
Пожалуйста, скажите, что нашли этот объект на Domovita.by
+
Фильтр сохранен