Выберите валюту для сайта:
BYN
Подать БЕСПЛАТНО

Продажа торговой точки в Бресте, 1600000USD, код 995161

4430.5 м2 Ленинский район / Задворцы
4 633 120 р.
Торговый объект
Город Брест
Район Ленинский район
Микрорайон Задворцы
Адрес Брест
Площадь 4430.5 м2
Удобства
Лифт
Кондиционер
Парковка

Описание

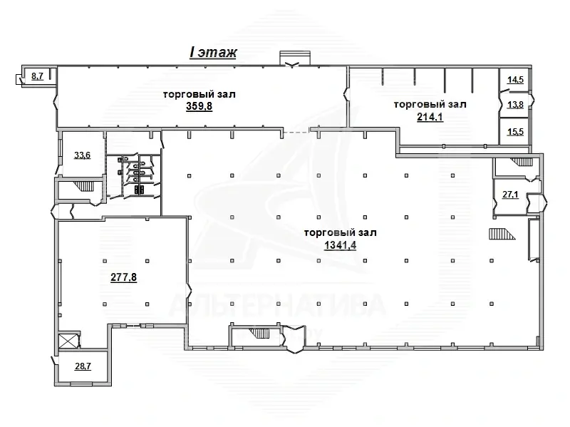
Здание специализированное розничной торговли (наименование - торговый центр) в собственность в районе Задворцы города Бреста общей площадью 4430,5 кв.м. Отдельно стоящее двухэтажное капитальное строение. 1 (первый) этаж общей площадью 2513,4 кв.м состоит из нескольких торговых залов разной площади (1341,4 + 214,1 + 359,8 + 277,8 кв.м), а также административно - хозяйственных, подсобных помещений, нескольких отдельных санузлов. Высота потолков в торговых залах от 3,64 м до 6,24 м. 2 (второй) этаж общей площадью 1917,1 кв.м состоит из 2 (двух) торговых залов площадью 1642,2 + 140,2 кв.м, а также нескольких подсобных помещений и отдельных санузлов. Высота потолков в торговых залах - 2,95 м. Технические характеристики здания: фундамент железобетонный, полы - плитка, стены блочные, кирпичные, перекрытия - ж/б плиты, крыша рулонная совмещенная, окна, двери - ПВХ. В здании оборудован грузовой лифт, установлены кондиционеры. Все центральные коммуникации (в т.ч. собственная газовая котельная). Собственная парковка. Цена указана с НДС. Рассматриваются все варианты. Лот - 171918. Смотреть подробнее.

Здесь можно подписаться на рассылку новых предложений и снижения цен по КОММЕРЧЕСКОЙ НЕДВИЖИМОСТИ в Брестском регионе прямо Вам в Viber или Telegram ЗАО «АЛЬТЕРНАТИВА Брест». УНП 291427570 Лицензия № 02240/303 от 02.02.2016г. Договор номер 1918/1 от 23.08.2017
Код объекта: 995161 Договор с собственником: 23.08.2017 №1918/1 Опубликовано: 19.08.2023 Обновлено: 27.11.2025
0 / 0 / 3
Динамика цен за кв. метрДинамика цен
Похожие объекты
Адрес
Комнат
Площадь
Этаж
Цена за м2
Цена
Торговое помещение в Бресте
1060.9 м2
1 365 р. за м2
Торговое помещение в Бресте
994.8 м2
1 455 р. за м2

Вы просматривали

860 023 р. 7 357 р. за м2
Ленинский р-н
405 398 р. 2 602 р. за м2
Ленинский р-н
1 042 452 р. 3 710 р. за м2
Московский р-н
130 307 р. 4 588 р. за м2
Ленинский р-н
141 889 р. 3 784 р. за м2
Ленинский р-н
4 633 120 р. 1 046 р. за м2
Ленинский р-н
576 244 р. 929 р. за м2
Ленинский р-н
325 766 р. 4 951 р. за м2
Ленинский р-н
304 049 р. 3 744 р. за м2
Ленинский р-н
1 447 850 р. 1 455 р. за м2
Ленинский р-н
Торговый объект, 4430.5 м2
Брест
4 633 120 р.
1 046 р. за м2
Ярмоцик Андрей Петрович
Пожалуйста, скажите, что нашли этот объект на Domovita.by
+
Фильтр сохранен