Выберите валюту для сайта:
BYN
Подать БЕСПЛАТНО

Купить складское помещение в Бресте

1331.7 м2 1 этаж из 1 Московский район / Волынка-Горшоны
1 934 725 р.
Склад
Город Брест
Район Московский район
Микрорайон Волынка-Горшоны
Адрес Брест
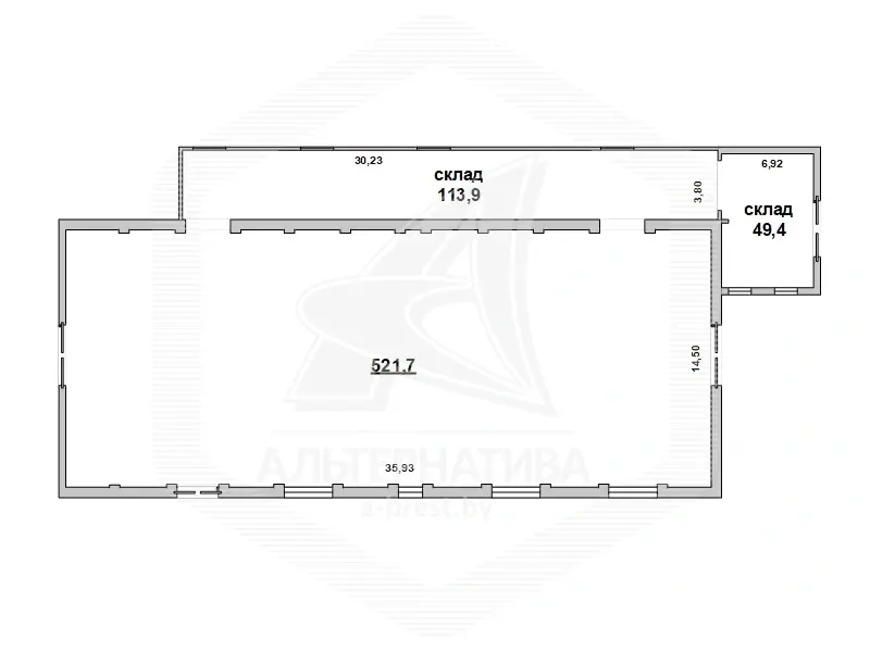
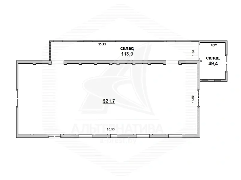
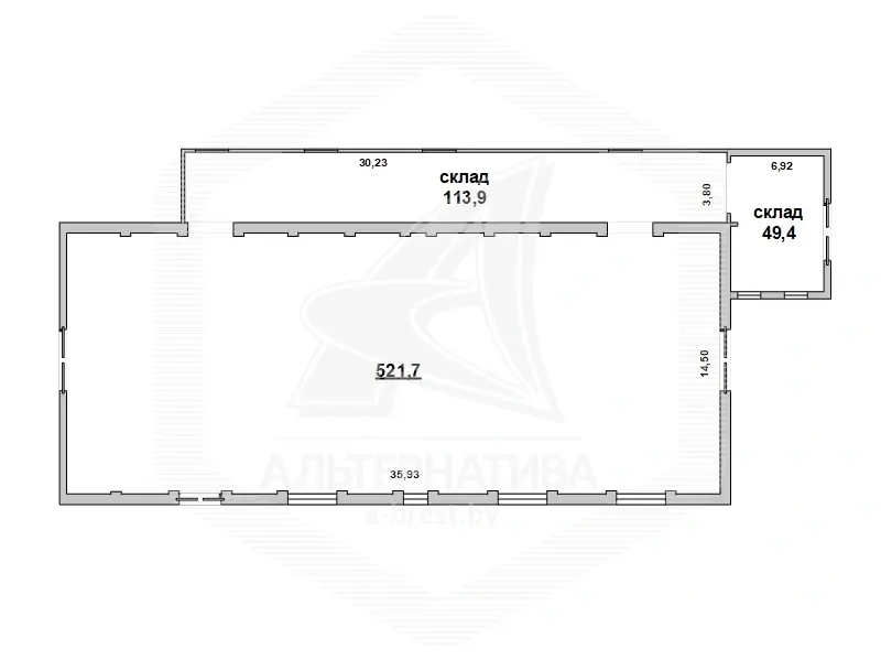
Площадь 1331.7 м2
Этаж 1

Описание

Производственно - складская база с административно - хозяйственным зданием в собственность в промышленной зоне города Бреста (р - н Гершоны) общей площадью капитальных строений 1331,7 кв.м (в т.ч. производственно - складское здание - 685 кв.м, административно - хозяйственное здание - 646,7 кв.м), расположенная на земельном участке площадью 0,4386 га. 1) Отдельно стоящее производственно - складское здание 2019 года реконструкции общей площадью 685 кв.м (в т.ч. производстенное помещение - 521,7 кв.м, складское помещение - 113,9 кв.м). Технические характеристики здания: фундамент бетонный, стены, крыша - металлический профилированный настил с полимерным покрытием, окна - ПВХ, ворота - автоматические роллеты. Высота потолков от 4,15 до 5,47 м. Есть кран - балка (5 т). 2) Отдельно стоящее административно - хозяйственное здание 2009 года постройки общей площадью 646,7 кв.м. Включает в себя офисный блока с отдельным входом, бытовые помещения, конференц - зал, комнату отдыха, гараж с 2 (двумя) отдельными въездами. Технические характеристики здания: фундамент бетонный, полы - плитка, ламинат, стены - блочные, кирпичные, перекрытия - ж/б плиты, крыша - металлочерепица, окна - ПВХ. Все коммуникации: электричество - 220, 380 Вт (входная мощность до 20 кВт), отопление газовое (собственная котельная), водоснабжение центральное, канализация местная, ливневая канализация, оборудована пожарная и охранная сигнализация, установлено видеонаблюдение, проведено оптоволокно. Земельный участок площадью 0,4386 га предоставлен собственнику в долгосрочную аренду (до 28.11.2123 г.) для обслуживания зданий. Территория базы огорожена, полностью асфальтирована. Цена указана с НДС. Рассматриваются все варианты. Лот - 250726. Смотреть подробнее.

Здесь можно подписаться на рассылку новых предложений и снижения цен по КОММЕРЧЕСКОЙ НЕДВИЖИМОСТИ в Брестском регионе прямо Вам в Viber или Telegram ЗАО «АЛЬТЕРНАТИВА Брест». УНП 291427570 Лицензия № 02240/303 от 02.02.2016г. Договор номер 726/1 от 04.04.2025
Код объекта: 994793 Договор с собственником: 04.04.2025 №726/1 Опубликовано: 10.04.2025 Обновлено: 12.03.2026
0 / 0 / 7
Динамика цен за кв. метрДинамика цен

Вы просматривали

1 934 725 р. 1 453 р. за м2
Московский р-н
Склад, 1331.7 м2
Брест
1 934 725 р.
1 453 р. за м2
Ярмоцик Андрей Петрович
Пожалуйста, скажите, что нашли этот объект на Domovita.by
+
Фильтр сохранен