Выберите валюту для сайта:
BYN
Подать БЕСПЛАТНО
Выберите валюту для сайта:

Продажа домов в Цагельне

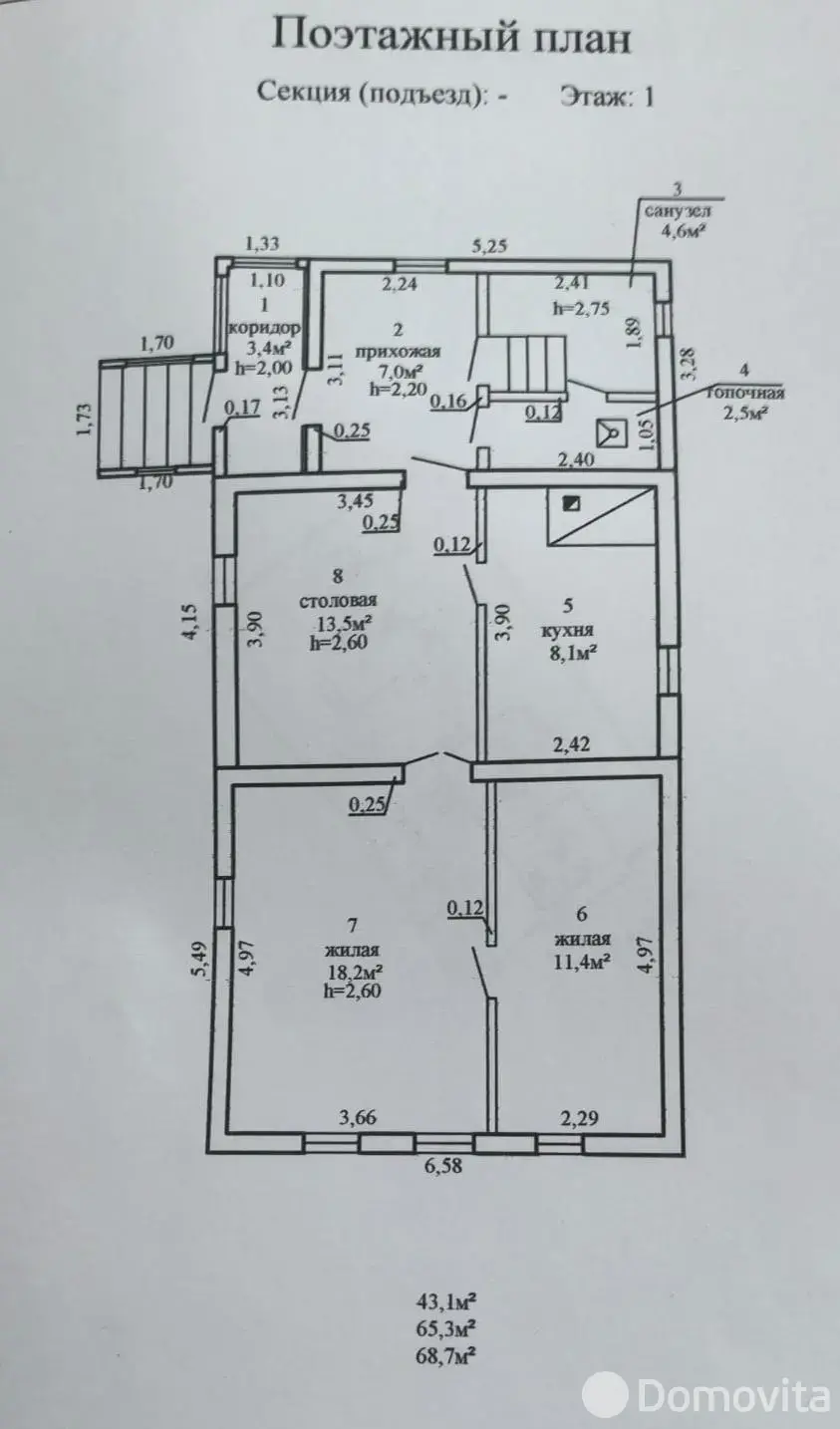
520 / 347 / 13м2
1999г.

Элитный , добротный ,дорогой богатырь .Коттедж находится в 4 км. от Гомеля в очень востребованном месте п.Цагельня (Новобелицкий район) в сосновом лесу.Коттедж уже оснащен всем необходимым для комфортного проживания в том числе бытовой техникой...

Обновлено: 03.09.2025

Ближайшие предложения продажи домов возле Цагельни:

81 / 11 / 37м2
1990г.

Кирпичный жилой дом 81м2 для комфортной жизни за городом, с прекрасным ухоженным садом на участке 17,6 соток.Находиться в самом центре д. Березки, ул. Цветочная, Гомельский район. Рядом остановка и вся инфраструктура. От Центра Гомеля 15 минут на автомобиле,...

Обновлено: 02.03.2026
1-этажный дом, г. Гомель, ул. Далекая, д. 66
Советский район / Монастырек;
220 / 62 / 13м2
1996г.

Продается одноэтажный блочный, облицованный кирпичом жилой дом в центре г. Гомеля (мкрн. Монастырек) по ул. Далёкая. Есть цокольный этаж с гаражом и кубовой, а так же сарай и погреб. Дом 1996 года постройки. Общая площадь жилого помещения - 123.74 кв.м. Жилая...

Обновлено: 02.03.2026
158 / 152м2

Город Гомель, Ст "Незабудка", Будатин Улуковский район, рядом с Романовичами и Красным маяком, огорожен полностью забором железобетонным, крыша Будмат Германия, Свет на участке 3 фазы, газ 2 метра от забора, сделана Скважина 34 метра. Общая площадь...

Обновлено: 25.02.2026
2-этажный дом, г. Гомель, ул. Зябровская
Новобелицкий район / Южный;
Гомель (5 км от Ченок)
121 / 37 / 45.5м2
2015г.

В живописном месте Гомеля рядом с лесом продается комфортабельный кирпичный благоустроенный дом. Выполнен отличный современный ремонт с применением импортных материалов. Дом полностью укомплектован мебелью, техникой, текстилем (все как на фото)....

Обновлено: 20.02.2026
1-этажный дом, г. Гомель, ул. Бабушкина, д. 5
Новобелицкий район / Чапаево;
65.3 / 15.1 / 21.6м2
1994г.

Продается дом в пяти минутах езды от исторического центра города, где расположен Центральный парк, множество кафе и ресторанов,  рядом пляж реки Сож. Площадь дома 69,0 м2, есть возможность строительства.  В доме газовое отопление, вода центральная,...

Обновлено: 20.02.2026
181 / 90.9 / 8м2
2011г.

Продается дом в п. Поляна Ченковского с/с без отделки, окна ПВХ, крыша шифер, мансарда, цокольный этаж, гараж, электричество 380 вольт, газ по улице. Прекрасное местоположение, рядом остановки, река, дом последний по улице с живописным видом из окна.

Обновлено: 19.02.2026
1-этажный дом, г. Гомель, ул. Кутузова
Новобелицкий район / Мостище;
69.7 / 52.56 / 10м2
1961г.

Продается дом по ул.Кутузова. Дом бревенчатый с пристройками из кирпича.Общая площадь 70 м.2.Количество комнат-5.Просторная кухня-10 м.2. Газовое отопление.Вода-ценральная.Канализация-выгребная яма. В доме очень приятно находится в жаркие летние дни(прохладно),и...

Обновлено: 15.02.2026
89.4 / 65.1 / 9.2м2

В д. Зябровка по ул. Мира продаётся добротный кирпичный дом. Его общая площадь - 89 м.кв. Все окна в доме - ПВХ. Есть видеонаблюдение! Газовое отопление! Но, есть и действующая русская печь. Также - твердотопливный котёл. Участок - 14.22 сотки. На участке...

Обновлено: 15.02.2026
131 266 р.
89 / 46 / 12.2м2
1995г.

В центре Березок по улице 70 лет Великого Октября, продаётся кирпичный дом общей площадью 89 м² и земельным участком 16 соток. Дом 1995 года постройки. 3 комнаты площадью 20.9 м²; 16.4 м²; 8.7 м²; кухня 12.2 м². Высокие потолки 2,65. Отопление газовое, 2-х контурный...

Обновлено: 15.02.2026
70.7 / 35.1 / 35.6м2
2025г.

Продается блочный дом площадью 70,7 кв м, на участке 9,9 соток в местечке Новая Жизнь, Железнодорожный район г.Гомеля, ул.Лебедёвская,33. Дом введен в эксплуатацию в 2025 г, фундамент ж/б блоки, стены блоки ПГС, крыша ондулиновая, полы в доме бетонные. Электричество,...

Обновлено: 14.02.2026
151.8 / 74.5 / 36м2
2015г.

Продаётся уютный добротный дом — идеальное сочетание комфорта современной инженерии и готовности к дальнейшей отделке под ваш вкус.Общие преимущества— Тёплый цокольный этаж, полностью утеплённый — дополнительная зона для хранения, мастерской...

Обновлено: 13.02.2026
2-этажный дом, п. Юбилейный, Гомельский р-н
Юбилейный (9 км от Ларищево)
132.6 / 60.2 / 30.4м2
2016г.

Продается просторный таунхаус без отделки в п. Юбилейный (Гомельский район), всего в 10–15 минутах от города. Отличное решение для тех, кто хочет жить в собственном доме с комфортом городской квартиры.Площадь дома — 132,6 м2, участок 5,33 сотки в собственности....

Обновлено: 13.02.2026
48 / 30 / 17.5м2
1994г.

Мечтаете о тихой жизни вдали от городской суеты? Этот дом ждет вас! Продается уютный, теплый и полностью обустроенный дом в живописном агрогородке Бобовичи! Забудьте о ремонте и хлопотах с обустройством! Этот дом готов принять новую семью и подарить...

Обновлено: 13.02.2026
Полдома в 1-этажном доме, г. Гомель, ул. Орудийная 1-я
Новобелицкий район / Хутор;
Гомель (6 км от Цагельни)
59.3 / 44.9 / 10.5м2
1951г.

Предлагаем вашему вниманию уникальное предложение!Продается часть уютного частного дома (57/100), где каждый уголок наполнением умиротворением и гармонией природы. Дом расположен в живописном районе, окруженном зелеными насаждениями и цветущими...

Обновлено: 13.02.2026
108.7 / 57.8 / 15.1м2
2024г.

Где Мечты Обретают Дом: Эксклюзивный Особняк 2024 года в Сердце Курортного Рая.Представьте себе место, где каждый рассвет начинается с пения птиц, а закаты окрашивают небо в немыслимые оттенки, лаская взгляд панорамными видами. Место, где воздух...

Обновлено: 13.02.2026
39 950 р.
45.9 / 27 / 18.9м2
1921г.

Эксклюзив: Огромный Участок 25 СОТОК под Гомелем! Свой дом, свое хозяйство, своя свобода! Зябровка.Представьте себе... ЦЕЛЫХ 25 СОТОК вашей собственной земли! Это не просто участок – это ваше личное королевство для жизни, отдыха и воплощения самых...

Обновлено: 13.02.2026
2-этажный дом, г. Гомель, ул. Новый Двор
Новобелицкий район / Южный;
Гомель (5 км от Цагельни)
599 256 р.
182.9 / 90.7 / 11.1м2
2000г.

Продаётся 2-этажный дом рядом с лесом в экологически чистом районе города, в шаговой доступности остановки общественного транспорта, школа, детский сад, магазины, поликлиника.В 2015 году была произведена полная реконструкция всего дома (проектная...

Обновлено: 12.02.2026
1-этажный дом, г. Гомель, ул. Залинейная
Новобелицкий район / Чапаево;
Гомель (10 км от Цагельни)
84.1 / 51.6 / 32.69м2
1946г.

Продаётся блочно-деревянный одноэтажный жилой дом. 5 комнат, окна деревянные, входная металлическая дверь. Есть сарай, на участке плодово-ягодные насаждения. Все коммуникации в доме. Установлены приборы учёта воды, газа и электричества, газовая...

Обновлено: 12.02.2026
Полдома в 1-этажном доме, г. Гомель, ул. Хуторская
Новобелицкий район / Хутор;
Гомель (6 км от Цагельни)
59.7 / 49 / 10.7м2
1960г.

Продаётся часть дома в жилом состоянии площадью по СНБ 65,3 кв.м. Окна ПВХ, входная металлическая дверь, на полу ламинат, ДСП. Есть сарай, погреб. Все коммуникации - газ, электричество о доме, вода в доме (центральный водопровод), электроводонагреватель,...

Обновлено: 12.02.2026
icon
Рассылка новых объявлений
Получайте уведомления о новых объектах по вашему фильтру: Продажа домов в Цагельне
icon
Помощь в продаже и подборе недвижимости
Продать/купить недвижимость

Подпишитесь на новые объявления с выбранными параметрами

Ваш email:
+
Фильтр сохранен