Выберите валюту для сайта:
BYN
Подать БЕСПЛАТНО

Купить земельный участок, 11 соток, Чучаны, Минская область, 55000USD, код 571349

11 соток
Участок
Город Чучаны
Адрес Чучаны
Направление Молодечненское
Удаленность от МКАД 9.73 км
Участок 11 соток
Водоснабжение Центральное
Электричество есть
Удобства
Лес
Водоем
Магазин

Описание

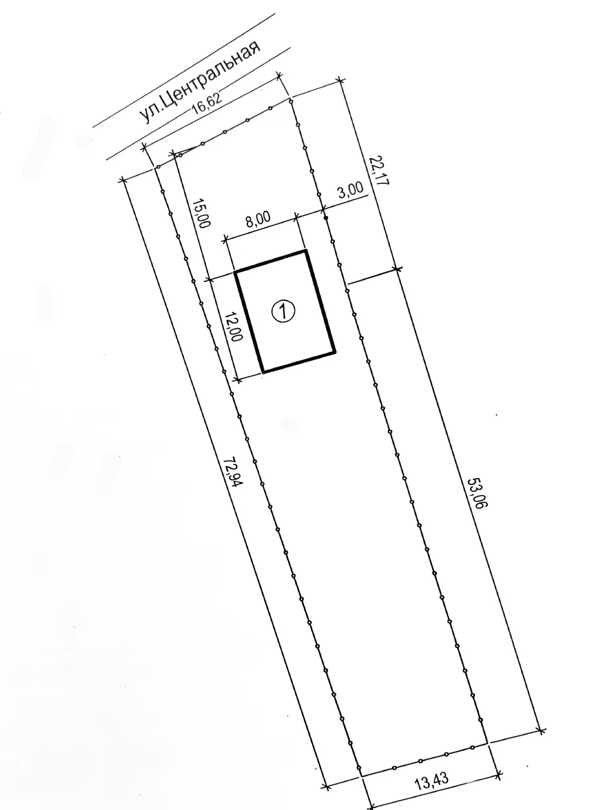
Продаётся земельный участок в д. Чучаны Минского района.

Месторасположение: 12 км от МКАД, Молодечненское направление, рядом с посёлком Сёмково.

Участок находится на первой береговой линии, до водоёма всего 200 метров. Площадь — 11 соток, назначение — для ведения личного подсобного хозяйства (ЛПХ), с подготовленными документами на изменение целевого назначения части земли под застройку. Участок ровный, частично огорожен, на нём расположен торговый павильон. Подъезд осуществляется по асфальтированной дороге.

Коммуникации: вода - центральная проходит рядом, свет - рядом, газопровод по улице.

Обеспечено отличное транспортное сообщение с Минском: маршрутное такси и автобусы ходят каждые 30 минут. В самой деревне есть постоянно действующий продовольственный магазин.

В непосредственной близости протекает река Вяча, а в шаговой доступности находится Заславское водохранилище.
!Смотрите еще больше участков на нашем Telegram канале @nedvizhimost_bel

Код объекта: 571349 Договор с собственником: 194/1 от 17.12.2025 Опубликовано: 18.12.2025 Обновлено: 16.02.2026
3 / 3 / 158
Динамика цен за кв. метрДинамика цен
Участок, 11 соток
Чучаны
165 484 р.
Григорий
Пожалуйста, скажите, что нашли этот объект на Domovita.by
+
Фильтр сохранен