Подать БЕСПЛАТНО

Продажа 2-этажного коттеджа в Дзержинске, Минская область ул. Крутогорская, д. 2, 55000USD, код 657624

Минская область, г. Дзержинск, ул. Крутогорская, 2
Показать на карте
Брестское направление
35.59 км от МКАД
155 678 р.
Код объекта: 657624
98.9 м2
9.07 соток
Обновлено: 20.03.2026
155 678 р.
Предложить свою цену

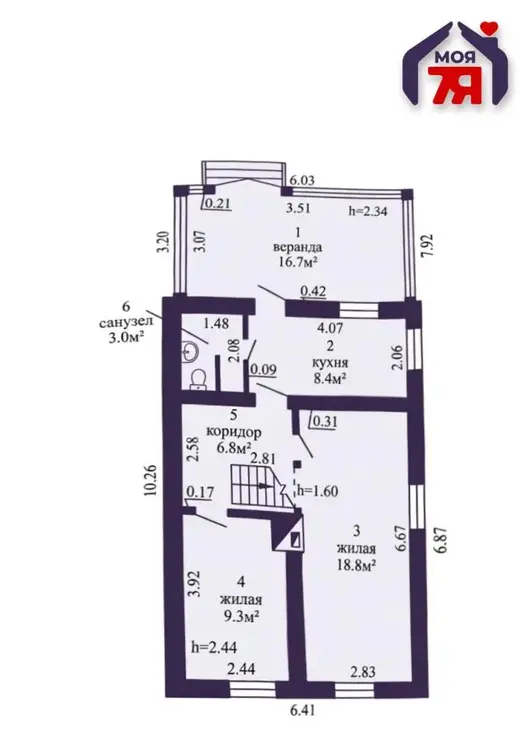
О доме

Площадь общая
98.9 м2
Площадь дома
98.9 м2
Участок
9.07 соток
В продаже
Целый дом
Готовность дома, %
100
Год постройки
2025
Материал стен
дерево
Материал крыши
Шифер

Удобства

Водоем
Лес

Коммуникации

Отопление: печное
Водоснабжение: Центральное
Электричество: Есть
Канализация: Есть

Описание

Деревянный дом у реки с участком и теплицами
Уютный дом из натурального бруса с садом прямо у воды — идеальный вариант для тех, кто мечтает о спокойной жизни в гармонии с природой, не теряя связи с городом.

- Двухэтажный дом построен из качественного материала: первый этаж из лиственницы и кедра (брус диаметром 20 см), второй этаж из сосны (диаметр 15 см).
-Полы деревянные по всему дому, создают теплую атмосферу. Проводка медная, что гарантирует надежность электроснабжения.
-К дому подведен газ по улице и центральная канализация (не подключена к дому).
- Санузел облицован плиткой, в доме предусмотрен туалет. Кровля и облицовка кирпичом защищают строение от непогоды. Мебель присутствует. На участке установлены две застекленные теплицы (25мм уголок), сарай.
- Дом расположен в экологически чистом районе, окруженный лесом. Рядом протекает река Нетечка (200 метров), пляж находится всего в 500 метрах — идеально для летнего отдыха.
-Асфальтированная дорога обеспечивает удобный проезд.
-На участке растут плодоносящие яблони — яблоки хранятся вплоть до мая.
- Это место дарит редкое сочетание: близость к природе, возможность ведения хозяйства, собственный пляж и лес.
Дом идеален для семьи, которая ценит натуральность, простоту и желает создать свой маленький рай вдали от городского шума. Здесь можно выращивать овощи в теплицах, собирать фрукты со своего сада и просыпаться под пение птиц. Это не просто дом — это образ жизни, который заслуживает каждая семья.
Для кого подойдет: молодых семей, пенсионеров, предпринимателей, развивающих агробизнес, или тех, кто хочет иметь подворье для личных нужд. Выбирайте этот дом, если вы готовы к активной жизни, любите свежий воздух и хотите быть ближе к земле.
Ищете выгодную недвижимость или хотите продать свою? Мы решим это для Вас с заботой и профессионализмом:

- Купить квартиру или дом в Минске и области - Продать недвижимость по выгодной цене - Оформить ипотеку, семейный капитал или кредит на покупку недвижимости - Помочь с инвестициями в недвижимость - Подобрать дизайнерский ремонт или перепланировку - Выбрать лучший банк для выгодного кредита и лизинга
* Напишите нам в удобный мессенджер - Viber, Telegram или WhatsApp, и мы ответим на все вопросы!
«Моя 7Я» решит это, как для своей семьи: с любовью, заботой и желаемым результатом!

Агентство недвижимости ООО «Центр международной недвижимости Моя 7Я» | УНП 193750826 | Лицензия: № 02240/484 выдана МЮ РБ 18.05.2024 г. | Страховое свидетельство БР 0005017

Агент
год на сайте
Показать почту
Пожаловаться на объявление
Агентство недвижимости
«Центр международной недвижимости Моя 7Я»

Местоположение

Минская область, г. Дзержинск, ул. Крутогорская, 2
Опубликовано: 20.03.2026