Подать БЕСПЛАТНО

ОБЪЕКТ В АРХИВЕ

Продажа 1-этажного коттеджа в Гомеле, Гомельская область ул. Озерная, д. 78, 43000USD, код 652512

г. Гомель, ул. Озерная, 78
Показать на карте
125 513 р.
Код объекта: 652512
50 м2
5.63 соток
Обновлено: 18.08.2025
125 513 р.
Предложить свою цену

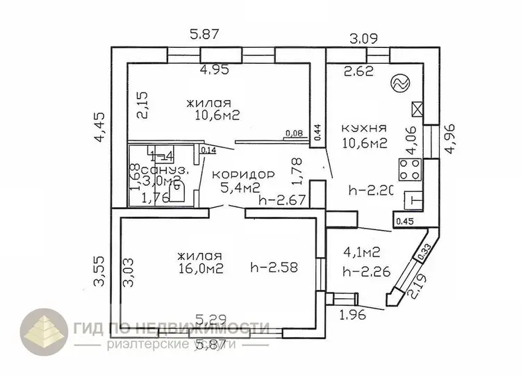
О доме

Площадь общая
50 м2
Площадь дома
50 м2
Участок
5.63 соток
В продаже
Целый дом
Готовность дома, %
100
Год постройки
1960
Материал стен
блоки
Материал крыши
Шифер

Удобства

Баня
Водоем
Гараж

Коммуникации

Отопление: газовое
Водоснабжение: Центральное
Газ: В доме
Электричество: Есть
Канализация: Есть

Описание

Продается жилой дом в Железнодорожном районе города Гомеля по ул. Озерная. Дом 1960 года постройки. Шлакобетонный. Фундамент бутовый и бетонный. Пристройка 1982 года. В дом заведен газ, центральный водопровод, местная канализация. На земельном участке имеется гараж, баня, сарай, погреб. Строения оформлены. В доме сделан косметический ремонт. Заменены окна, окрашены полы и потолки, переклеены обои, заменены розетки и выключатели, светильники, сделаны откосы ПВХ. Стены в комнатах и коридоре обшиты гипсокартоном. Фасад дома оштукатурен с фасадной сеткой. Окрашен. Кровля шифер. Канализационные трубы ПВХ, водопроводные - металлопласт. Высота потолка от 2,2 до 2,67 метра. Потолки из гипсокартона и ОСБ плиты.

Участок ровный. Прямоугольной формы. Место не затапливается. Имеются плодовые деревья. Оформлен на праве пожизненного наследуемого владения. Площадь 5,63 сот.

Баня бревенчатая в отличном состоянии.

Отопление от газового котла, колонка для подогрева воды.

Очень красивое и живописное место! Дом расположен напротив озера.

Обмен не рассматриваем. Для просмотра дома просьба звонить по телефону +375447118710. Вадим.

Договор на оказание риэлтерских услуг № 143/1 от 15.08.2025 года, ООО “Гид по недвижимости”, УНП 491323159, г. Гомель, ул. Крестьянская, 32-2, Лицензия Министерства юстиции Республики Беларусь на осуществление риэлтерской деятельности №02240/310 от 10.06.2016 – риэлтерские услуги.

ВадимАгент
9 лет на сайте
Пожаловаться на объявление
Агентство недвижимости
Гид по недвижимости

Местоположение

г. Гомель, ул. Озерная, 78
Опубликовано: 18.08.2025

Похожие объекты

На этой улицеВ этом районе
131 351 р.
Железнодорожный район, ул. Озерная
100
65
м2
10 соток
125 513 р.
Железнодорожный район, ул. Озерная
82.6
51.4
17.3 м2
9.9 соток
583 780 р.
Железнодорожный район, ул. Профсоюзная
318.5
124
52.1 м2
15 соток
93 405 р.
Железнодорожный район, ул. Западный Блокпост
49.6
25.3
15 м2
8.29 соток
61 297 р.
Железнодорожный район, ул. Рощинская
39
22.3
10 м2
9.3 соток