Подать БЕСПЛАТНО

Купить 2-комнатную квартиру в Гомеле, пер. Островского 2-й, д. 6

г. Гомель, пер. Островского 2-й, 6
Показать на карте
Советский район
72 393 р.
Цена за м2: 1 955 р.
Код объекта: 1210329
2 комнаты
31.1 м2
1 этаж из 2
Обновлено: 14.11.2025
72 393 р.
Цена за м2: 1 955 р.
Предложить свою цену

О квартире

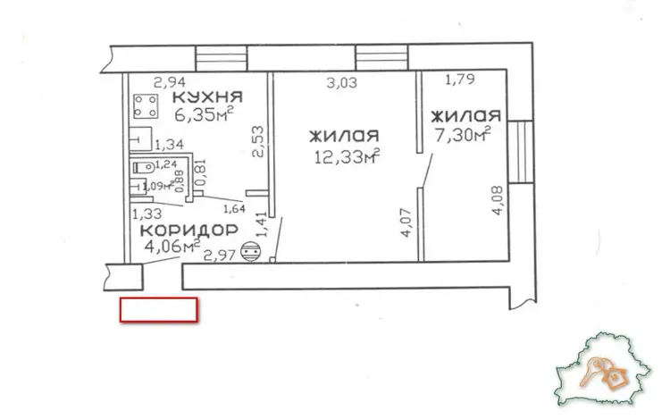
Площадь
31.1 м2
общая
19.6 м2
жилая
6.35 м2
кухня
Отдельных комнат
1 комната
Санузел
Совмещенный
Балкон
Нет
Тип ремонта
С отделкой

О доме

Этаж
1 из 2
Материал стен
Кирпичный
Год постройки
1958
Год кап. ремонта
2020

Описание

Продается двухкомнатная квартира в Советском районе города  Гомеля по второму пер. Островского, 2, дом 6.

Капитальный ремонт с заменой  крыши  был сделан в 2020 году.

Квартира расположена на удобном 1-м этаже двухэтажного кирпичного дома. Есть возможность пристроить балкон.

Общая площадь 31,1 м.кв., жилая 19,6 м.кв., кухня 6,35 м.кв. Санузел совмещенный. Проходная комната с высокими потолками 2,76 м.

Окна все в квартире деревянные,  полы доски.  Потолки окрашены, межкомнатные двери в хорошем состоянии, входная дверь металлическая. Сантехника в хорошем состоянии.

Установлены все счетчики.

Квартира ждет новых хозяев!

В пользовании за квартирой закреплен гараж

Чистый и ухоженный подъезд, интеллигентные соседи, всегда есть свободные места на парковке.

В шаговой доступности детские сады, школы, лицей, остановки общественного транспорта «Автобусный парк № 1», с удобной логистикой по всем направлениям, торговые сети магазинов различного формата, почтовое отделение, стоматологии, места досуга разного формата на любой вкус, все это позволяет комфортно проживать людям любого возраста.

Отличное предложение для Вас! Звоните и приходите на просмотр в согласованное время! Вы по достоинству оцените все преимущества приобретения данной квартиры, поселившись в ней.

Формы расчета: наличный/безналичный, кредит. Наши официальные партнёры: "Белгосстрах", Банк "БелВЭБ", "Белинвестбанк", "Паритетбанк", "Беларусбанк", «Нео банк Азия».

 

Агент
5 лет на сайте
Условия сделки:Чистая продажа
Пожаловаться на объявление
Агентство недвижимости
"Наше Агентство" Бобруйск

Местоположение

г. Гомель, пер. Островского 2-й, 6
Советский район
Опубликовано: 14.11.2025

Возможно, вам будет интересно

Похожие объекты

В этом районе
130 307 р.
Цена за м2: 2 244 р.
Советский район, ул. Барыкина
3-комн. кв
54.2
41.3
5.7 м2
4 этаж из 4
118 434 р.
Цена за м2: 2 160 р.
Советский район, ул. Владимирова
4-комн. кв
58.34
42.54
6.24 м2
5 этаж из 5
113 511 р.
Цена за м2: 3 356 р.
Советский район, ул. Владимирова
1-комн. кв
32.8
17.4
5.4 м2
2 этаж из 5