Подать БЕСПЛАТНО

Продажа 3-комнатной квартиры в Гомеле, ул. Кирова, д. 149

г. Гомель, ул. Кирова, 149
Показать на карте
Центральный район
215 258 р.
Цена за м2: 2 577 р.
Код объекта: 1154503
3 комнаты
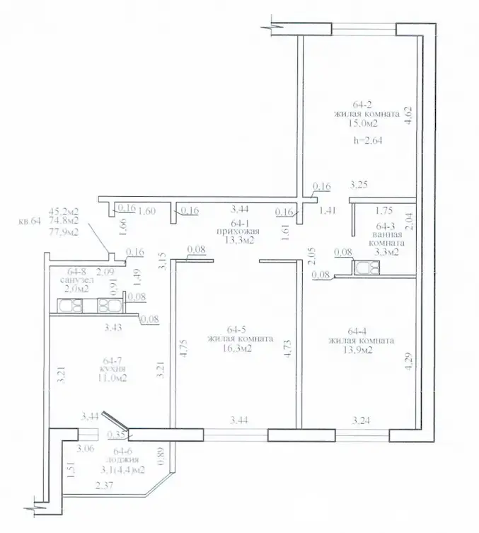
77.9 м2
16 этаж из 16
Обновлено: 18.04.2025
215 258 р.
Цена за м2: 2 577 р.
Предложить свою цену

О квартире

Площадь
77.9 м2
общая
42.5 м2
жилая
11 м2
кухня
Отдельных комнат
3 комнаты
Санузел
Раздельный
Балкон
Лоджия
Тип ремонта
Без отделки

О доме

Этаж
16 из 16
Материал стен
Панельный
Год постройки
2024

Описание

Центр города. Большая квартира в новостройке.

Шикарные виды из окон.
Просторная кухня 11 кв.м., если в семье два ребёнка, важно, чтобы комнаты и кухня были большими, чтобы потом не жалеть, и не менять квартиру на побольше.

Из окон виден детский сад и школа - вам не придётся детей куда-то возить, все во дворе не переходя дорогу.

Новая большая стоянка для авто.
Сверху полноценный техэтаж.
Индивидуальные счётчики на отопление.
По всей квартире проложена вся электрика, розеток достаточно.

2 лифта, квартиры от лифтов отделены тамбуром- для тишины в квартирах.

Сейчас выгодное время для покупки, так как низкий курс валюты.

В ближайший год в Гомеле наблюдается дифицит нового жилья, поэтому эта квартира станет хорошей инвестиций.

В Белгазпромбанке можно взять выгодный кредит под 14.5%

Цена снижена до 16го мая.

АлексейСобственник
10 месяцев на сайте
Условия сделки:Чистая продажа
Пожаловаться на объявление

Местоположение

г. Гомель, ул. Кирова, 149
Центральный район
Опубликовано: 18.04.2025

Возможно, вам будет интересно

Похожие объекты

На этой улицеВ этом районе
257 448 р.
Цена за м2: 3 022 р.
Центральный район, ул. Кирова
3-комн. кв
85.2
53.1
13.2 м2
3 этаж из 3
106 194 р.
Цена за м2: 2 572 р.
Железнодорожный район, ул. Кирова
2-комн. кв
41.3
27.57
5.9 м2
4 этаж из 4
169 336 р.
Цена за м2: 2 820 р.
Железнодорожный район, ул. Кирова
3-комн. кв
55.97
37.96
6.97 м2
2 этаж из 4
81 798 р.
Цена за м2: 2 100 р.
Железнодорожный район, ул. Старочерниговская
2-комн. кв
38.95
26.67
6.04 м2
1 этаж из 2
120 544 р.
Цена за м2: 2 905 р.
Железнодорожный район, ул. 50 лет БССР
2-комн. кв
41.5
26
6.2 м2
4 этаж из 5
335 802 р.
Цена за м2: 2 988 р.
Железнодорожный район, ул. Советская
1-комн. кв
37
15.3
7.9 м2
9 этаж из 10