Подать БЕСПЛАТНО

Купить 3-комнатную квартиру в Гомеле, ул. Рогачевская, д. 4

г. Гомель, ул. Рогачевская, 4
Показать на карте
Центральный район
173 742 р.
Цена за м2: 3 032 р.
Код объекта: 1153914
3 комнаты
57.3 м2
2 этаж из 5
Обновлено: 15.04.2025
173 742 р.
Цена за м2: 3 032 р.
Предложить свою цену

О квартире

Площадь
57.3 м2
общая
40.6 м2
жилая
6 м2
кухня
Санузел
совмещенный
Тип ремонта
Хороший

О доме

Этаж
2 из 5
Материал стен
Кирпичный
Год постройки
1962

Описание

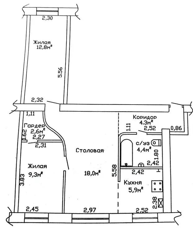
По ул. Рогачевская, 4 продается трёхкомнатная квартира европейского формата (евротрёшка), общей площадью 57,3 м.кв.

Расположена она в теплом кирпичном доме, на идеальном 2м этаже из 5ти.

 

В квартире выполнен качественный ремонт. Делали его для себя и собственного комфортного проживания.

"Круглые стены" не оставят равнодушными к имеющейся планировке.

А прекрасную половину человечества ждёт и  собственная гардеробная комната.

Продается в связи с переездом.

Перепланировка (см. план) узаконена!

 

В квартире были заменены: лаги пола, проводка, сантехника.

Потолки и стены выравнены.

Окна заменены на ПВХ. Установлена качественная металлическая дверь.

Подведена сигнализация.

 

Прямо у дома - остановка общественного транспорта ("Ул. Рогачевская").

Рядом: Универмаг "Гомель", аптеки, банки, ясли-сады, школа, гимназия, парикмахерские, кафе, рестораны (La Salute - на первом этаже дома) и многое-много другое.

В шаговой доступности - авто и ж/д вокзалы.

СветланаАгент
9 лет на сайте
Условия сделки:продажа
Показать почту
Пожаловаться на объявление
Агентство недвижимости
"Капитал недвижимости"

Местоположение

г. Гомель, ул. Рогачевская, 4
Центральный район
Опубликовано: 15.04.2025

Возможно, вам будет интересно

Похожие объекты

На этой улицеВ этом районе
188 221 р.
Цена за м2: 3 848 р.
Железнодорожный район, ул. Рогачевская
2-комн. кв
48.9
29.7
7.1 м2
1 этаж из 5
136 749 р.
Цена за м2: 2 450 р.
Железнодорожный район, ул. Рогачевская
2-комн. кв
54.9
27.4
8 м2
1 этаж из 9
208 490 р.
Цена за м2: 3 226 р.
Железнодорожный район, ул. Рогачевская
3-комн. кв
64.59
39.08
7.76 м2
8 этаж из 9
195 460 р.
Цена за м2: 2 968 р.
Центральный район, ул. Гагарина
3-комн. кв
61
41
6.5 м2
1 этаж из 3
220 073 р.
Цена за м2: 3 405 р.
Центральный район, ул. Комсомольская
3-комн. кв
64.6
40.6
7.56 м2
4 этаж из 5
217 178 р.
Цена за м2: 3 412 р.
Центральный район, ул. Ирининская
3-комн. кв
66.2
45.73
7.89 м2
4 этаж из 4