Выберите валюту для сайта:
BYN
Подать БЕСПЛАТНО

Снять торговую точку на ул. Карповича, д. 17 в Гомеле, 3900BYN, код 968329

75 м2 1 этаж из 4 Центральный район / Набережный
3 900 р./мес.
Торговый объект
Город Гомель
Район Центральный район
Микрорайон Набережный
Адрес ул. Карповича, д. 17
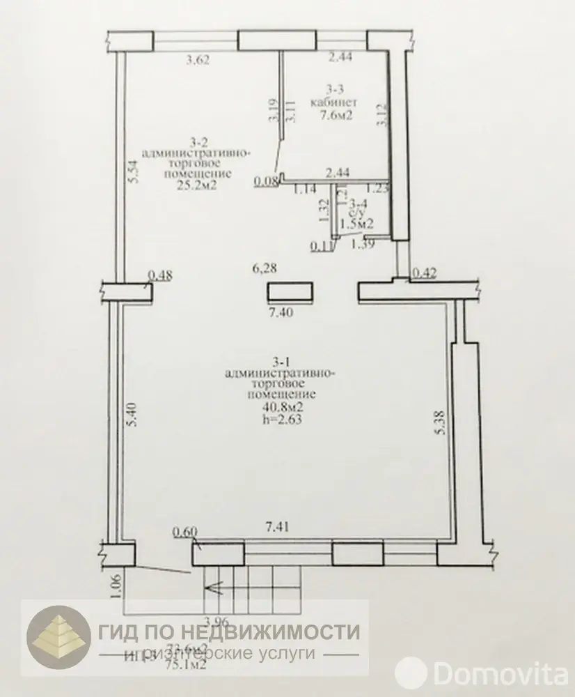
Площадь 75 м2
Этаж 1
Удобства
Отдельный вход

Описание

Сдается в аренду магазин (помещение административно-торговое) по адресу г. Гомель, ул. Карповича, 17 (район Центрального рынка и проспекта Ленина, д. 28). Общая площадь помещения 75,1 м. кв. Высота потолка в помещении 2,63 метра, перекрытия железобетонные, окна алюминиевые и ПВХ, входная дверь алюминиевая, на всех окнах и входной двери имеются роллеты с электроприводом. Пожарная и охранная сигнализация. Новый натяжной потолок и светильники в основном зале. В помещении имеется горячее и холодное водоснабжение. Размещение кафе с приготовление пищи невозможно! Канализация и вентиляции общедомовые. Помещение чистое и аккуратное. Стены ровные, прошпаклеваны. Лестница бетонная, отделана гранитом. Ограждение хромированное. В доме проведен капитальный ремонт. Напротив помещения имеется парковка. Сделано благоустройство прилегающей территории. Очень проходное место! Только длительная аренда. Стоимость 3900 рублей в месяц. Договор на оказание риэлтерских услуг № 1/1А от 04.03.2026 года, ООО “Гид по недвижимости”, УНП 491323159, г. Гомель, ул. Крестьянская, 32-2, Лицензия Министерства юстиции Республики Беларусь на осуществление риэлтерской деятельности №02240/310 от 10.06.2016 – риэлтерские услуги.

Код объекта: 968329 Договор с собственником: 1/1А от 04.03.2026 года Опубликовано: 04.03.2026 Обновлено: 04.03.2026
0 / 0 / 2
Динамика цен за кв. метрДинамика цен
Похожие объекты
Адрес
Комнат
Площадь
Этаж
Цена за м2
Цена
39 м2
1 из 9
36 р. за м2

Вы просматривали

3 900 р./мес. 52 р. за м2
Центральный р-н
Торговый объект, 75 м2
Гомель, ул. Карповича, д. 17
3 900 р./мес.
52 р. за м2
Вадим
Пожалуйста, скажите, что нашли этот объект на Domovita.by
+
Фильтр сохранен