Подать БЕСПЛАТНО

ОБЪЕКТ В АРХИВЕ

Продать 2-этажный коттедж в Колодищах, Минская область ул. Благодатная, д. 11, 120000USD, код 656833

Минская область, аг. Колодищи, ул. Благодатная, 11
Показать на карте
Московское направление
5 км от МКАД
339 660 р.
Код объекта: 656833
6 комнат
125 м2
15 соток
Обновлено: 19.02.2026
339 660 р.
Предложить свою цену

О доме

Площадь общая
125 м2
Площадь дома
125 м2
Участок
15 соток
В продаже
Целый дом
Год постройки
2019
Материал стен
Блоки

Описание

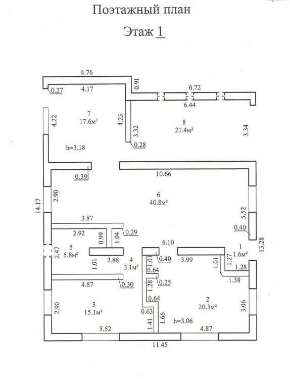
Продаётся двухэтажный дом (незавершенное законсервированное капитальное строение, 63% готовности) состоящий из первого и мансардного этажей, расположенный в агрогородке Колодищи. Дом стоит в тихом и уютном месте и расположен на участке 0,15 га. Земля находится в частной собственности. Участок правильной прямоугольной формы. Площадь первого этажа-125,7 кв. метров. На нём запроектированы: прихожая, две жилые комнаты, жилая комната с кухонным оборудованием, санузел, помещение гаража. На мансардном этаже – три жилые комнаты, холл и санузел. Материал стен дома- газосиликатный блок- толщиной 400 мм, пол - пустотелые железобетонные плиты, перекрытия-пустотелые железобетонные плиты, фундамент- железобетон, материал крыши –битумная черепица. Коммуникации: водопровод и газ проходят рядом с забором. Электричество-установлен столб с электрощитом. Вдоль забора проходит и телефонная линия. Хорошие подъездные пути-до дома проложен асфальт, агрогородок связан со столицей общественным транспортом. Расстояние до Минска-5 километров, до станции метро Уручье-11 километров.
ГеннадийАгент
9 лет на сайте
Показать почту
Пожаловаться на объявление
Агентство недвижимости
Юриэлт

Местоположение

Минская область, аг. Колодищи, ул. Благодатная, 11
Опубликовано: 19.02.2026

Похожие объекты

На этой улицеВ этом доме
339 660 р.
аг. Колодищи, ул. Благодатная
6-комн. кв
125.7
100
м2
15 соток
339 660 р.
аг. Колодищи, ул. Благодатная
6-комн. кв
125.7
100
м2
15 соток