О доме
Удобства
Коммуникации
Описание
Ваш собственный маленький Рай!
Роскошная усадьба в заповедной приграничной зоне на берегу озера Снуды!
Д. Кривосельцы расположена в 10 километрах к северу от города Браслав и находится в 4,5 километрах от границы с Латвией, в 62 км. от Даугавпилса.
Участок правильной формы площадью 25 сот. по периметру обнесен забором, имеет прямой выход к береговой линии озера Снуды, что позволяет организовать собственный благоустроенный пляж или пирс!
На участке гармонично расположились жилой хозяйский дом со всеми удобствами, гостевой дом с баней, банкетным залом, жилыми комнатами, беседка с барбекю и видом на озеро Снуды! Участок в зоне застройки вымощен тротуарной плиткой, его площадь позволяет реализовать любые ландшафтные решения.
Жилой трехуровневый дом, общей площадью 220 м.кв. позволяет комфортно разместить большую семью, либо компанию друзей, здесь хватит места всем! Внутренняя отделка полностью выполнена из дерева, дверные и оконные проёмы декорированы изразцами ручной работы, межкомнатные двери деревянные ручной работы. Убранство трех спален на втором этаже представлено ручной росписью стен, выполненное профессиональным художником.
Фундамент бутобетон, стены блок оштукатурен, межкомнатные перегородки блок/кирпич, перекрытия деревянные, полы дощатые/плитка, крыша ондулин.
Дом полностью автономен, все необходимое оборудование установлено в котельной 13 м. кв. на первом этаже: автоматизированный котел на твердом топливе, бойлер для горячего водоснабжения, расширительный бачок. Водоснабжение дома организовано из собственной скважины с системой фильтрации, канализационная система местная, электроснабжение центральное
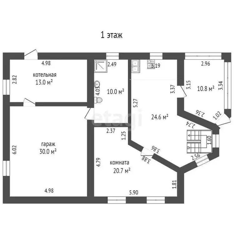
На первом этаже находится:
· большая кухня 26.4 м.кв., оборудована кухонным гарнитуром из массива дерева ручной работы и всей необходимой встроенной техникой,
· спальня 20.7 м.кв.;
· ванная комната 10 м. кв. с роскошной угловой ванной, унитазом, биде, умывальником, стиральной машиной;
· гараж 30м.кв. на два автомобиля оборудован роллетными воротами на пульте управления;
· котельная 13м.кв.
На втором этаже эргономично расположились:
· три спальни (16,1 м. кв., 12,1 м. кв., 12,1 м. кв.);
· гостиная 26,5 м. кв., с большим камином;
· большой холл 40,9 м. кв.;
· санузел 5,2 м. кв. с душевой кабиной.
Третий уровень - мансардный этаж площадью 50 м. кв. который может быть использован для организации бильярдной, кинозала и т.д.
Уникальность усадьбы в том, что здесь можно организовать отдых на любой запрос и возраст. Тут Вы сможете порыбачить, заняться подводной охотой, охотой, сбором грибов и ягод, совершать пешие прогулки по лесу, или же просто загорать и купаться в кристально чистых водах озера, совершать прогулки на лыжах зимой, увлечься зимней рыбалкой и многим другим. Всё это и многое другое Вы сможете получить в одном месте, а развитая инфраструктура Браславского района позволит наслаждаться всеми благами человечества находясь рядом с первобытной красотой природы.
Тепло и уют дома, огонь камина, елка, украшенная к Рождеству и Новому Году, родные и близкие друзья, и бесконечно новые пейзажи зимы, весны, лета и осени подарят Вам и Вашим любимым множество счастливых дней и множество приятных впечатлений и воспоминаний!
Не упустите шанс стать счастливым обладателем роскошной усадьбы!
Звоните, покажем в удобное для Вас время!
Продадим Вашу недвижимость для покупки этой!
Бесплатная консультация кредитного брокера и согласование кредита!
ООО "ЭТАЖИ юнайтед"
УНП:193673318
Договор 1982/1 от 18.09.2025
Лицензия на оказание риэлтерских услуг №02240/460 МЮ РБ от 03.04.2023












