Подать БЕСПЛАТНО

ОБЪЕКТ В АРХИВЕ

Фотографии отсутствуют

Продажа 3-комнатной квартиры в Лиде, ул. Чайковского, д. 20

Гродненская область, г. Лида, ул. Чайковского, 20
Показать на карте
46 485 р.
Цена за м2: 666 р.
16 900 $
242 $/м2
Код объекта: 1232787
3 комнаты
69.8 м2
2 этаж из 2
Обновлено: 06.03.2026
46 485 р.
Цена за м2: 666 р.
16 900 $
242 $/м2
Предложить свою цену

О квартире

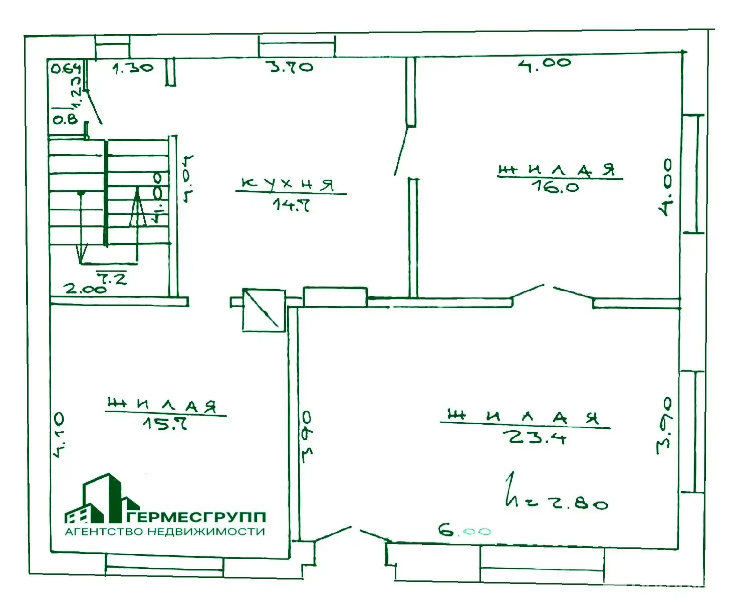
Площадь
69.8 м2
общая
55.1 м2
жилая
14.7 м2
кухня

О доме

Этаж
2 из 2
Год постройки
1960

Описание

Продается 3-х комнатная квартира на улице Чайковского. Требуется ремонт. 

Описание:
Продается просторная трехкомнатная квартира в востребованном районе на улице Чайковского. Отличный вариант для тех, кто хочет создать жилье под себя с нуля. Квартира полностью без ремонта.


Характеристики:
· Площадь: Общая — 69.8 м2, жилая — 55,1 м2 (просторные комнаты).
· Дом: Блочный.
· Санузел: Отсутствует
· Отопление: Печное.
· Газ: Подведён к дому (возможно газовое отопление или плита).
· Водоснабжение: Центральное (холодная вода).
· Канализация: Отсутствует.


Инфраструктура:
Квартира находится в районе с развитой инфраструктурой. В шаговой доступности находятся:
· Школа и детский сад.
· Магазины (продуктовые и хозяйственные).
· Остановка общественного транспорта (отличная транспортная доступность).

Условия:
· Торг: Уместен (рассмотрим все разумные предложения).

Поможем продать вашу недвижимость быстро и выгодно! Обращайтесь по всем вопросам.

Покупатель НЕ ПЛАТИТ за услуги агентства, но приобретет юридически проверенную недвижимость! 

Работаем со всеми видами кредитов, материнским капиталом, субсидиями.

Консультации по покупке, продаже, обмену недвижимости обращайтесь по адресу: г. Лида, б-р. Князя Гедимина.12, пом.9 (около налоговой).

ООО "Агентство недвижимости ГермесГрупп». УНП 193776843. Лицензия Министерства Юстиции Республики Беларусь  N 02240/487 от 07.08.2024 г.

ГермесгруппАгентство
год на сайте
Условия сделки:продажа
Показать почту
Пожаловаться на объявление
Агентство недвижимости
"Агентство недвижимости Гермес Групп"

Местоположение

Гродненская область, г. Лида, ул. Чайковского, 20
Опубликовано: 06.03.2026

Возможно, вам будет интересно