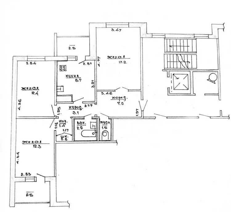
О квартире
Площадь
67.1 м2
общая
41.9 м2
жилая
8.7 м2
кухня
Санузел
раздельный
Балкон
Лоджия
О доме
Этаж
4 из 9
Материал стен
Панельный
Год постройки
1999
Описание
Ксения — Агент
2 года на сайте
Условия сделки:Чистая продажа
Показать почту
Пожаловаться на объявление
Агентство недвижимости
Юриэлт, филиал г. Лида
УНП: 101214439 Лицензия: от 17.02.2005 № 40 МЮ РБ
Договор №: #51/20 от 11.02.2025












