Подать БЕСПЛАТНО

Продажа 2-комнатной квартиры в Молодечно, ул. Великий Гостинец, д. 111

Минская область, г. Молодечно, ул. Великий Гостинец, 111
Показать на карте
148 398 р.
Цена за м2: 2 808 р.
Код объекта: 1203714
2 комнаты
50.9 м2
4 этаж из 10
Обновлено: 14.10.2025
148 398 р.
Цена за м2: 2 808 р.
Предложить свою цену

О квартире

Площадь
50.9 м2
общая
29.9 м2
жилая
7.2 м2
кухня
Отдельных комнат
2 комнаты
Санузел
Раздельный
Балкон
Лоджия

О доме

Этаж
4 из 10
Материал стен
Кирпичный
Год постройки
1977

Описание

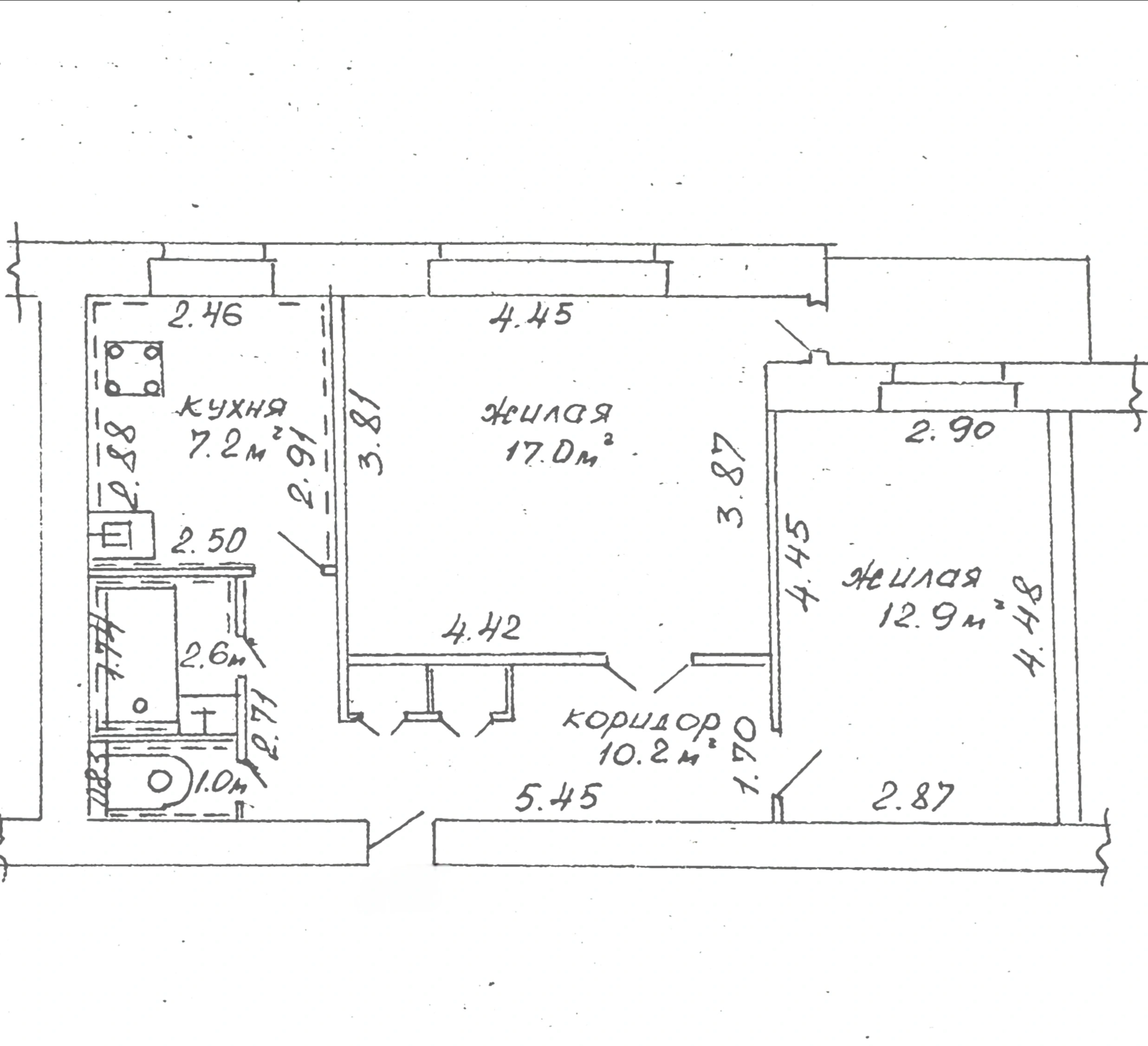
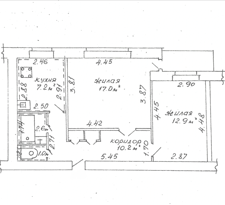
Продается 2-х комнатная квартира в одном из лучших районов г. Молодечно улице Великий Гостинец д. 11 на оптимальном удобном 4 этаже 10-этажного кирпичного дома с лифтом.

Общая площадь-50,7 кв.м.,по СНБ-52,1 кв.м., жилая площадь-29.9 кв.м., площадь кухни — 7,2 кв.м. Две большие полноценные комнаты 17 кв.м. и 12,9 кв.м. хорошей правильной формы, просторная прихожая, в которой разместится длинный шкаф-купе. Выход на лоджию из центральной комнаты, Окна выходят на южную сторону что обеспечивает отсутствие шума от насыщенного транспортного движения на центральной улице города.

Дом построен по чешскому проекту. Большие лестничные площадки широкие лестничные марши, новый лифт, два выхода из подъезда,- центральный выход и во внутренний двор.

Квартира уютная, теплая, в простом жилом состоянии без особого ремонта, Окна ПВХ (кроме окна в спальне), алюминиевая раздвижная рама на лоджии. Полы дощатые крашеные. В ванной комнате достойный ремонт, плитка, сантехника в хорошем рабочем состоянии.

Район с развитой инфраструктурой. Все необходимое для комфортной жизни рядом или в шаговой доступности. Развитая торговая сеть и рынок, поликлиника, парк Победы с водоемами, фонтанами и амфитеатром, школы № 6, 8, 10 (гимназия), детские сады, медицинские центры. Рядом остановка автобусов и маршрутного такси Молодечно-Минск.

Цена -  эквивалент 49990$ только до 10.01.2026. Поможем продать вашу недвижимость если заинтересуетесь этой квартирой.

ЧУП "Агентство недвижимости «Дом для Вас». УНП 690324176. Лицензия 02240/109 от 06.05.2006г. Страховой полис БР № 0005459. Договор на оказание риэлтерских услуг № З4/1 oт 10.10.2025r.

Риэлтер Агент
9 лет на сайте
Условия сделки:Чистая продажа
Пожаловаться на объявление
Агентство недвижимости
Дом для Вас

Местоположение

Минская область, г. Молодечно, ул. Великий Гостинец, 111
Опубликовано: 14.10.2025

Возможно, вам будет интересно

Похожие объекты

На этой улицеВ этом доме
206 047 р.
Цена за м2: 3 090 р.
г. Молодечно, ул. Великий Гостинец
2-комн. кв
76.2
36.9
10.8 м2
1 этаж из 3
185 855 р.
Цена за м2: 3 148 р.
г. Молодечно, ул. Великий Гостинец
3-комн. кв
59
38
8 м2
4 этаж из 5
178 706 р.
Цена за м2: 3 059 р.
г. Молодечно, ул. Великий Гостинец
3-комн. кв
58.4
35.1
8.4 м2
2 этаж из 9
171 272 р.
Цена за м2: 2 602 р.
г. Молодечно, ул. Великий Гостинец
3-комн. кв
63.6
41
8 м2
3 этаж из 5