Подать БЕСПЛАТНО

Продажа 2-комнатной квартиры в Речице, ул. Снежкова, д. 24

Гомельская область, г. Речица, ул. Снежкова, 24
Показать на карте
69 763 р.
Цена за м2: 1 480 р.
Код объекта: 1204896
2 комнаты
47.1 м2
4 этаж из 5
Обновлено: 17.10.2025
69 763 р.
Цена за м2: 1 480 р.
Предложить свою цену

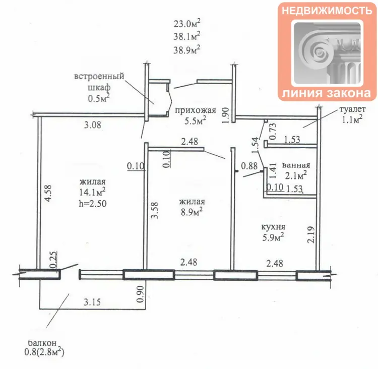
О квартире

Площадь
47.1 м2
общая
31.1 м2
жилая
6.2 м2
кухня
Отдельных комнат
2 комнаты
Санузел
Раздельный
Балкон
Балкон

О доме

Этаж
4 из 5
Материал стен
Панельный
Год постройки
1971
Год кап. ремонта
2024

Описание

Предлагаем к продаже двухкомнатную квартиру, расположенную по ул. Снежкова, 24 в городе Речица Гомельской области.

В ближайшем окружении расположены школа № 4 и № 6, детские сады, магазины «Березка», «Копеечка», мини-рынок.

Отличное месторасположение дома. Тихий, спокойный район.

Остановки общественного транспорта.

- стандартная планировка квартиры площадью 47,1 кв.м;

- функциональная планировка: раздельные жилые комнаты, выходящие на разные стороны дома;

- 4 этаж пятиэтажного панельного жилого дома 1971 г.п.;

- жилое состояние квартиры, без ремонта по современным стандартам;

- окна заменены на ПВХ стеклопакеты, входная дверь деревянная;

- 2 светлые просторные жилые комнаты;

- кухня 6,2 кв.м;

- балкон с установленными раздвижными ПВХ рамами;

- квартира не угловая;

- раздельный санузел, облицован плиткой;

- установлены счётчики воды, света, газа;

- в квартире предусмотрен встроенный шкаф в коридоре;

- квартира продается без мебели и бытовой техники;

- имеется собственное подвальное помещение.

- капремонт дома в многоквартирном жилом доме произведен в 2024 году;

- перепланировки отсутствуют

Рассматриваем предложения только о продаже.

ЮлияАгент
6 лет на сайте
Условия сделки:Чистая продажа
Пожаловаться на объявление
Агентство недвижимости
Твой риэлтер

Местоположение

Гомельская область, г. Речица, ул. Снежкова, 24
Опубликовано: 17.10.2025

Возможно, вам будет интересно

Похожие объекты

На этой улице
19 766 р.
Цена за м2: 517 р.
г. Речица, ул. Снежкова
2-комн. кв
38.1
23
5.9 м2
1 этаж из 5
72 670 р.
Цена за м2: 1 459 р.
г. Речица, ул. Снежкова
3-комн. кв
49.8
34.2
6.1 м2
5 этаж из 5
72 670 р.
Цена за м2: 1 247 р.
г. Речица, ул. Снежкова
4-комн. кв
58.2
42.4
5.9 м2
4 этаж из 5