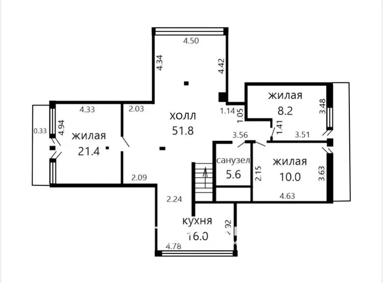
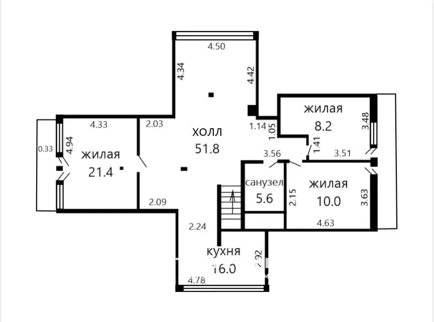
О квартире
Площадь
113 м2
общая
39.6 м2
жилая
16 м2
кухня
Отдельных комнат
3 комнаты
Санузел
раздельный
Балкон
Балкон
Тип ремонта
С отделкой
О доме
Этаж
4 из 4
Материал стен
Панельный
Год постройки
1997
Описание
Эксклюзивное предложение на рынке недвижимости - 3-комнатная квартира в доме клубного типа в самом сердце агрогородка Сеница.Принимая чашку утреннего кофе у себя во дворе, вы будете слышать пение птиц, а не ссоры соседей и шум машин. Оказывается, можно впитывать тишину и наслаждаться уединенностью, находясь прямо в эпицентре городских событий. Это на самом деле возможно. Эта возможность уникальна.Квартира занимает весь 4-ый мансардный этаж. Здесь максимально продуманная и практичная планировка: огромный холл с настоящим камином, три изолированные комнаты, просторная кухня, раздельный санузел с большой ванной комнатой и 2 застекленных и утепленных балкона. Окна выходя на все стороны света и ни один вид не оставит Вас равнодушным.В квартире выполнен отличный ремонт с использованием качественных материалов: напольное покрытие - ламинат высокого класса и плитка, встроенная кухня с качественной фурнитурой и импортной техникой. В санузлах установлена необходимая сантехническая посуда. В квартире много окон, за счет чего комнаты выглядят еще более просторными и светлыми. Камин с живым огнём добавляет уюта, а 2 кондиционера установят и поддержат оптимальную температуру. Входная металлическая дверь.Территория вокруг дома обнесена забором и включает в себя: уютную беседку с мангалом, ухоженный газон, фруктовый сад, клумбы и грядки для зелени.Хорошее транспортное сообщение: автобусы и маршрутные такси. Недавно открылась новая станция метро Слуцкий гостинец.В Сенице расположены: средняя школа им. Я. Купалы, поликлиника, аптека, детские сады, детская школа искусств, дом культуры, спортивные секции для детей, музыкальная школа, для самых маленьких - подготовительные кружки к школе. Фитнес-зал, библиотека, дом быта, парикмахерская, почта, магазины (ГИППО, Мила), торговый центр, банки, пункты выдачи Ozon и Wildberries - здесь есть всё, что необходимо для комфортной жизни.Чистый воздух, отличная питьевая вода. В пешей доступности река с рыбой и раками. Обилие зелени и уютных дорожек. Сеница - идеальный баланс между природой и городской жизнью.Трехкомнатная квартира по адресу ул. Янки Купалы, д. 3 (агрогородок Сеница)Материал стен: панельныйГод постройки: 1997Этаж: 4/4, 2 балкона застекленныхОбщая площадь: 113. Жилая площадь: 39.6. Площадь кухни: 16Смотреть подробнее Торг. Предложите свою цену. Последние поступления квартир. ТОП-20 ДЕШЕВЫХ КВАРТИРБАЗА ПОКУПАТЕЛЕЙ – узнайте, кто готов купить вашу квартиру прямо сейчас!КАЛЬКУЛЯТОР СТОИМОСТИ ЖИЛЬЯ – онлайн- расчет стоимости вашей квартиры!ПЕРЕЕЗЖАЕМ В НОВОСТРОЙКУ- программа обмена старого жилья на новое. 2 сделки в 1 день!ПАРТНЕР-КРЕДИТ сопровождение кредитования для покупки и обмена «под ключ»ВАШ ВАРИАНТ- проверка квартир перед покупкой и оформление сделки, если вы нашли объект самостоятельно. ООО "Твоя столица", УНП 101136973, лицензия №02240/15 от 17.02.05г.
Агент
10 лет на сайте
Показать почту
Пожаловаться на объявление
Агентство недвижимости
ТВОЯ СТОЛИЦА АГЕНТСТВО НЕДВИЖИМОСТИ
УНП: 101136973 Лицензия: от 17.02.2005 № 47
Договор №: 25.06.2025 №536/13

















