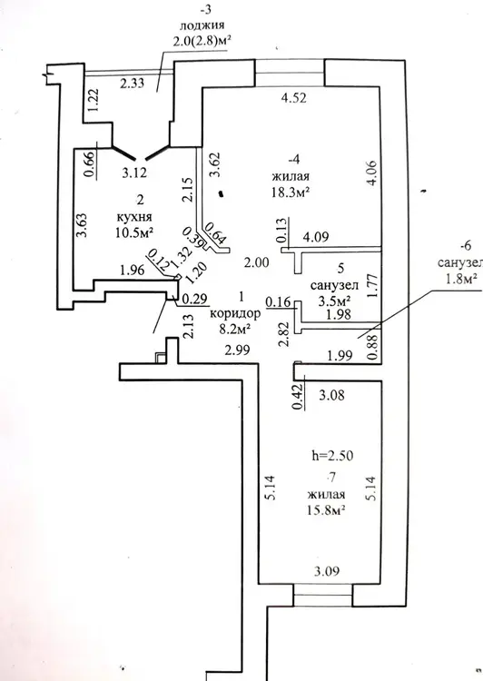
О квартире
Площадь
60.1 м2
общая
34.1 м2
жилая
10.5 м2
кухня
Санузел
раздельный
Балкон
Лоджия
Тип ремонта
Без отделки
О доме
Этаж
2 из 6
Материал стен
Кирпичный
Год постройки
2025
Описание
Ирина Короп — Агентство
6 лет на сайте
Условия сделки:продажа
Показать почту
Пожаловаться на объявление
Агентство недвижимости
Алеф Лайф
УНП: 193291493 Лицензия: МЮ РБ, 29.10.2019
Договор №: 7/3 от 2026-04-08

















