Выберите валюту для сайта:
BYN
Подать БЕСПЛАТНО

Продажа 1-этажной дачи в Бресте Брестская область, 75000USD, код 180087

Московский район 112.4 м2
Дача
Город Брест
Район Московский район
Микрорайон Волынка-Горшоны
Адрес Брест
Год постройки 2024
  
Общая площадь 112.4 м2
Участок 4.98 соток
Площадь дома 112.4 м2
Этажей 1
Материал стен Блоки
Отделка Без отделки
Тип отопления Газовое
Водоснабжение Скважина

Описание

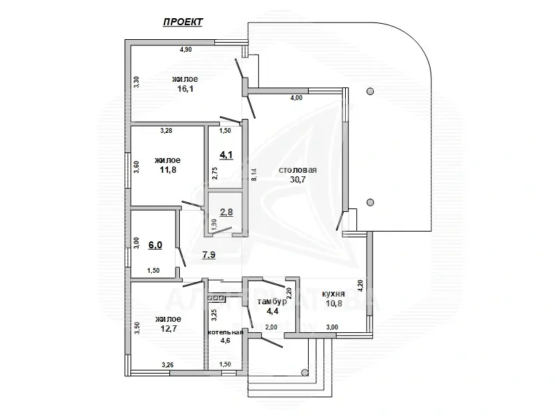
Дачный дом жилого типа в Брестском р-не. 2024 г.п. 1 этаж. Общ.СНБ - 125,2 кв.м, общ.- 112,4 кв.м, жил.- 71,6 кв.м, кух.- 10,83 кв.м. 4 комнаты. Стены: материал - газосиликатный блок; утепление - пенополистирол (пенопласт); отделка фасада - декоративная штукатурка. Кровля: металлочерепица. Фундамент: ленточный монолитный; материал - бетон; подушка - гравийная. Коммуникации: отопление - газовый котел, газ - централизованный (по улице), водоснабжение - скважина, электричество - централизованное, канализация - автономная (смонтирована по дому) и централизованная (по улице). Участок - 0,0498 га. Лот - 241971. Смотреть подробнее.

Здесь можно подписаться на рассылку новых предложений и снижения цен по ДАЧАМ и УЧАСТКАМ в Брестском регионе прямо Вам в Viber или Telegram ЗАО «АЛЬТЕРНАТИВА Брест». УНП 291427570 Лицензия № 02240/303 от 02.02.2016г. Договор номер 1971/1 от 17.09.2024
Код объекта: 180087 Договор с собственником: 17.09.2024 №1971/1 Опубликовано: 19.09.2024 Обновлено: 16.11.2025
0 / 1 / 112
Похожие объекты
Адрес
Комнат
Площадь
Этаж
Цена за м2
Цена
1-этажная дача, г. Брест, Брестский р-н
120.6 м2
2-этажная дача, г. Брест, Брестский р-н
97.63 м2
2-этажная дача, г. Брест, Брестский р-н
128.5 м2
2-этажная дача, г. Брест, Брестский р-н
212.3 м2
2-этажная дача, г. Брест, Брестский р-н
47.9 м2
Дача, 112.4 м2
Брест
218 153 р.
Жук Татьяна Ивановна
Пожалуйста, скажите, что нашли этот объект на Domovita.by
+
Фильтр сохранен